Skip to main content

Buy Apartment 3 room(s) 66 m2

430 000 €
Saint-Malo
(
35400
)
6264-21

By registering on Cabinet Moraine website, you will benefit from numerous additional services. Registration is completely free and does not commit you to anything.

Log in
3
Rooms
2
Bedrooms
66m²
Surface

Property description

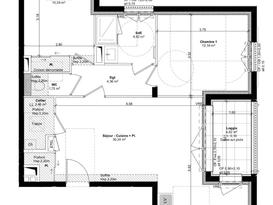
Saint Malo - 2-bedroom apartment, 66.08 sq m, with a 4.82 sq m loggia - 2nd floor - elevator - secure underground parking. Close to the beaches, amenities, and shops, in a quiet residential area, within a high-end residence built to the latest RT2020 standards, combining modern comfort and energy efficiency, this 2-bedroom apartment of 66.08 sq m is located on the second floor with elevator access. It comprises a living room with an open-plan kitchen opening onto a 4.82 sq m loggia, a pantry, a closet, two bedrooms, a shower room, and a separate toilet. Two secure underground parking spaces complete this property. High-quality features: RT2020 energy performance - Secure access via badge and video intercom. Developer price - reduced notary fees. Information on the risks to which this property is exposed is available on the Géorisques website: www.georisques.gouv.fr.
Condominiums of 57 units. Annual expenses : 950 euros.

Energy expenditure

A B C D E F G high performance housing extremely inefficient housing Not required
A B C D E F G very high CO2 emissions low CO2 emissions Not required

Location of property

Contactez-nous

Contact an advisor by phone or
leave us a message by filling the form

02 99 32 43 86

Financial simulation
Your loan amount Loan amount
Your loan period Loan period
Interest rate before negotiation Interest rates
Loan amount
Loan period
Monthly payments

 Reload Contact us

Biens similaires

A B C D E F G high performance housing extremely inefficient housing Not required
A B C D E F G very high CO2 emissions low CO2 emissions Not required
Affichage :