Skip to main content

Buy Apartment 3 room(s) 62 m2

397 000 €
Saint-Malo
(
35400
)
6262-16

By registering on Cabinet Moraine website, you will benefit from numerous additional services. Registration is completely free and does not commit you to anything.

Log in
3
Rooms
2
Bedrooms
62m²
Surface

Property description

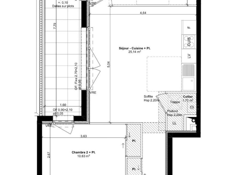
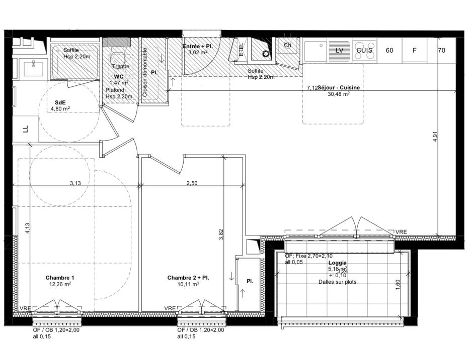
Saint Malo - 2-bedroom apartment, 62.87 sq m, west-facing, with a 12.46 sq m balcony - 1st floor - secure underground parking. In the heart of a quiet, residential area, close to beaches, amenities, and public transport, this apartment is located in a contemporary building, compliant with RT2020 standards, combining modern comfort and energy efficiency. Situated on the 1st floor with elevator access, this west-facing 2-bedroom apartment offers 62.87 sq m of living space. It comprises an entrance hall with a built-in wardrobe, a living room with an open-plan kitchen opening onto a 12.46 sq m terrace, a utility/storage room, two bedrooms, a shower room, and a separate WC. Underground parking is included. High-quality features include: RT2020 energy performance, secure access via badge and video intercom, elevator, developer pricing, and reduced notary fees. Information on the risks to which this property is exposed is available on the Géorisques website: www.georisques.gouv.fr.
Condominiums of 57 units (No proceedings in progress). Annual expenses : 1008 euros.

Energy expenditure

A B C D E F G high performance housing extremely inefficient housing Not required
A B C D E F G very high CO2 emissions low CO2 emissions Not required

Location of property

Contactez-nous

Contact an advisor by phone or
leave us a message by filling the form

02 99 32 43 86

Financial simulation
Your loan amount Loan amount
Your loan period Loan period
Interest rate before negotiation Interest rates
Loan amount
Loan period
Monthly payments

 Reload Contact us

Biens similaires

A B C D E F G high performance housing extremely inefficient housing Not required
A B C D E F G very high CO2 emissions low CO2 emissions Not required
Affichage :