Skip to main content

Buy Apartment 4 room(s) 87 m2

312 000 €
Chantepie
(
35135
)
6190-C1-33

By registering on Cabinet Moraine website, you will benefit from numerous additional services. Registration is completely free and does not commit you to anything.

Log in
4
Rooms
3
Bedrooms
1
Bathroom
87m²
Surface

Property description

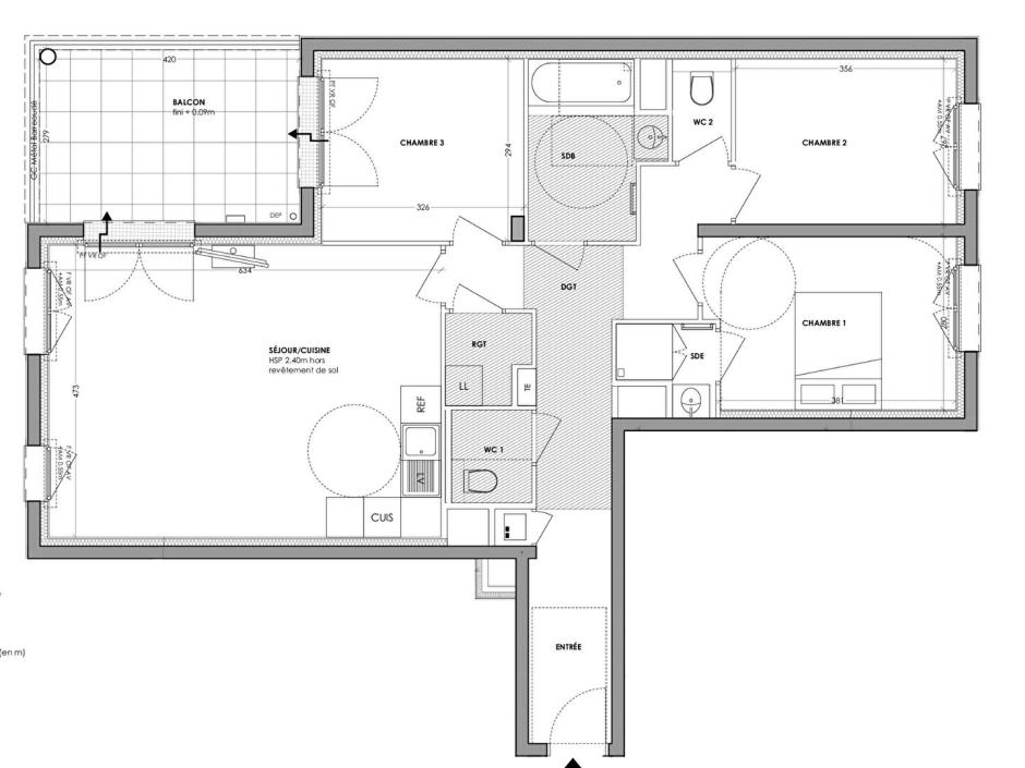
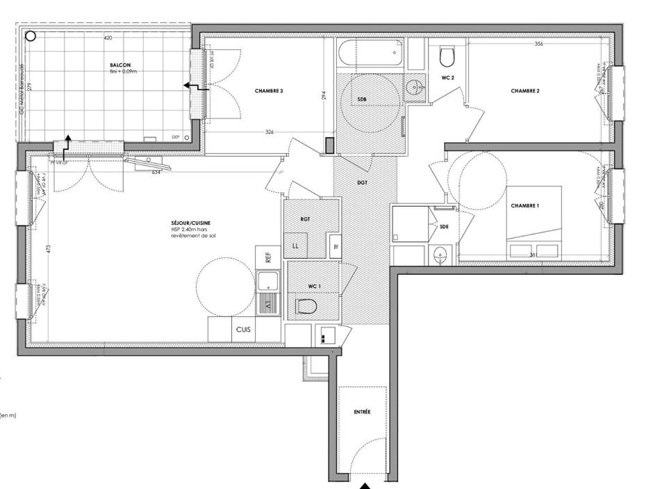
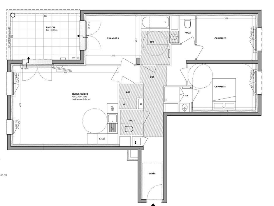
CHANTEPIE - 4-room apartment of 87.96sqm West - balcony 11.70sqm - 3rd floor - elevator - underground parking. 1.3km from the center of Chantepie, shops, amenities, local services, parks and gardens, ... in a green and residential environment, 4-room apartment facing West located on the 3rd floor with elevator comprising: a living room with open kitchen, access to the balcony of 11.70sqm facing West, 3 bedrooms, bathroom, shower room, separate toilet, storage. Private secure parking in the basement. Promoter price - reduced notary fees. Information on the risks to which this property is exposed is available on the Géorisques website: www.georisques.gouv.fr
Condominiums of 42 units (No proceedings in progress). Annual expenses : 1267 euros.

Energy expenditure

A B C D E F G high performance housing extremely inefficient housing Not required
A B C D E F G very high CO2 emissions low CO2 emissions Not required

Location of property

Contactez-nous

Contact an advisor by phone or
leave us a message by filling the form

02 99 32 43 86

Financial simulation
Your loan amount Loan amount
Your loan period Loan period
Interest rate before negotiation Interest rates
Loan amount
Loan period
Monthly payments

 Reload Contact us

Biens similaires

A B C D E F G high performance housing extremely inefficient housing Not required
A B C D E F G very high CO2 emissions low CO2 emissions Not required
Affichage :