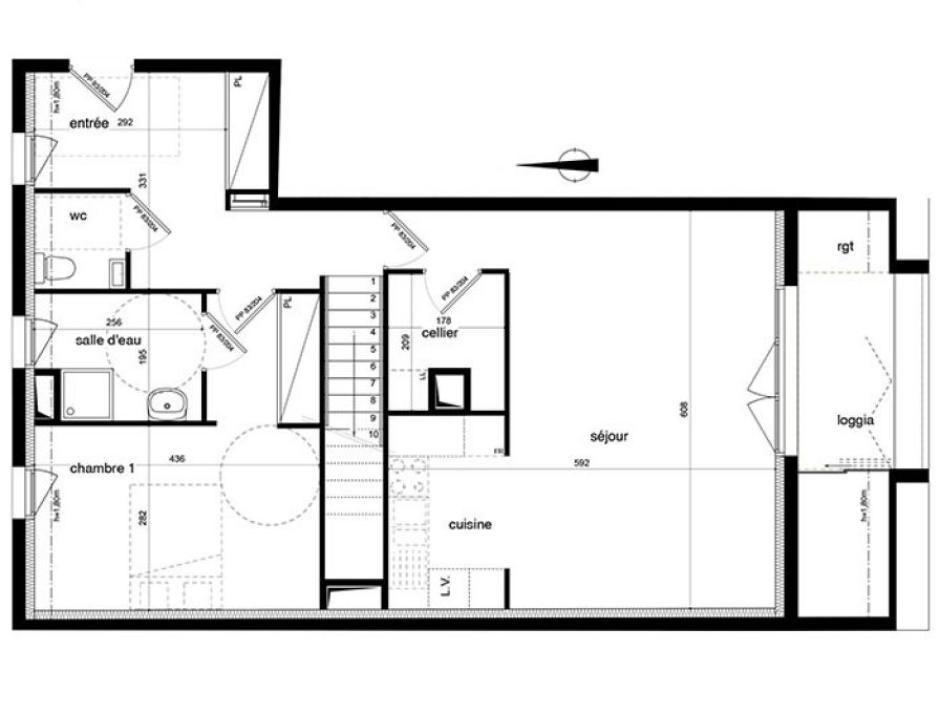
Buy House 3 room(s) 73 m2
SAINT-MALO - New 3-room house - 73.49 sqm - 238 sqm plot - Parking In the heart of a preserved natural setting, a few steps from nature, on the outskirts of St Malo, discover this detached house with beautiful features. Nestled in a small hamlet, it benefits from an attractive location, close to shops, healthcare facilities, economic centers and main transport routes. This 3-room house seduces with its noble and sustainable materials, as well as its optimized layout, designed for comfort and brightness.