Buy Apartment 5 room(s) 116 m2
By registering on Cabinet Moraine website, you will benefit from numerous additional services. Registration is completely free and does not commit you to anything.
Log inProperty description
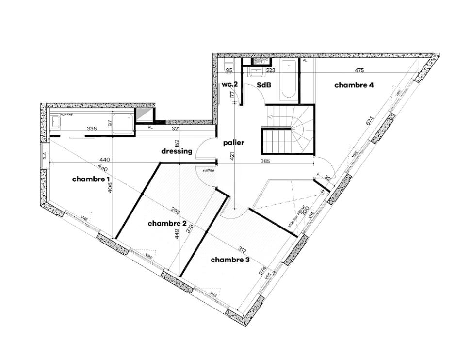
CABINET MORAINE - RENNES NEAR TOWN CENTER - BORDS DE VILAINE - 5 room apartment South West with terrace of 56.80m² - 2nd floor - garage - elevator and cellar. Not far from the city center and the TGV station, close to transport and amenities, in a new residential area Bords de la Vilaine enjoying a natural area of 4ha for leisure or walks, in a luxury residence and contemporary architecture, located on the 2nd floor with elevator, 5-room apartment of 116.20m² facing South West, comprising: an entrance with cupboard, large living room opening onto a beautiful terrace, open kitchen, 4 bedrooms, bathroom, 2 toilets, other terrace ... Garage and cellar. - Reduced notary fees - developer price - RT2012 standards www.immobilier-moraine.fr 02 99 32 43 86
Condominiums of 48 units (No proceedings in progress). Annual expenses : 2091  euros.
 
 
 
 
 
 
 
 
