Skip to main content

Buy Apartment 3 room(s) 67 m2

Price not given
Laillé
(
35890
)
567712-102

By registering on Cabinet Moraine website, you will benefit from numerous additional services. Registration is completely free and does not commit you to anything.

Log in
3
Rooms
2
Bedrooms
67m²
Surface

Property description

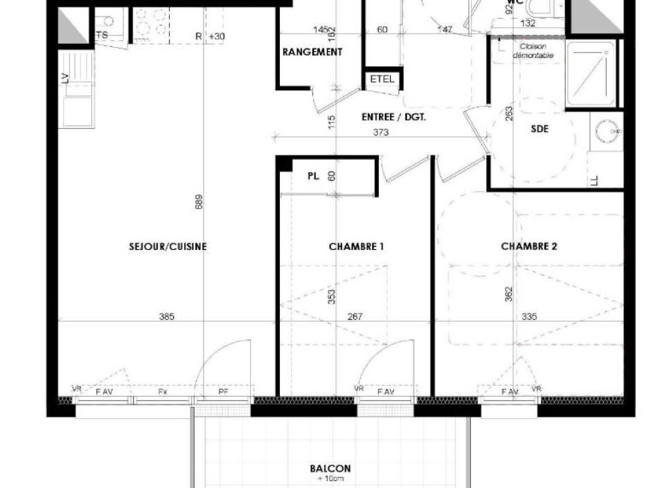
SOLD BY THE AGENCY Laille - South 3-room apartment of 67.10sqm - 1st floor - lift - balcony of 9.20sqm - private parking spaces. Available quickly. ideally located, a few steps from the center of the village, in a small intimate residence with refined architecture, located on the 1st floor with lift, 3-room apartment of 67.10sqm facing south comprising: an entrance with cupboard, hallway, living room with open kitchen giving access to a 9.20sqm balcony, laundry/storage room, two bedrooms, one with cupboard and access to the balcony, shower room with washing machine location, separate wc. 2 private parking lots. Cellar. Ideal main - secondary or rental. THE STRENGTHS OF LAILLÉ - Pedestrian paths, parks and forest, crèches, kindergartens, primary and secondary schools, cinema, cultural spaces, sports complex, market twice a week, local shops, doctors, pharmacy... Information on the risks to which this property is exposed are available on the Georisques website: www.georisques.gouv.fr Promoter price - reduced notary fees - RT2012 standards. Information on the risks to which this property is exposed is available on the Georisques website: www.georisques.gouv.fr
Condominiums of 21 units (No proceedings in progress). Annual expenses : 964 euros.

Energy expenditure

A B C D E F G high performance housing extremely inefficient housing Not required
A B C D E F G very high CO2 emissions low CO2 emissions Not required

Location of property

Contactez-nous

Contact an advisor by phone or
leave us a message by filling the form

02 99 32 43 86

Financial simulation
Your loan amount Loan amount
Your loan period Loan period
Interest rate before negotiation Interest rates
Loan amount
Loan period
Monthly payments

 Reload Contact us

Biens similaires

A B C D E F G high performance housing extremely inefficient housing Not required
A B C D E F G very high CO2 emissions low CO2 emissions Not required
Affichage :