Skip to main content

Buy Apartment 3 room(s) 58 m2

231 000 €
Vezin-le-Coquet
(
35132
)
62040-1001

By registering on Cabinet Moraine website, you will benefit from numerous additional services. Registration is completely free and does not commit you to anything.

Log in
3
Rooms
2
Bedrooms
58m²
Surface

Property description

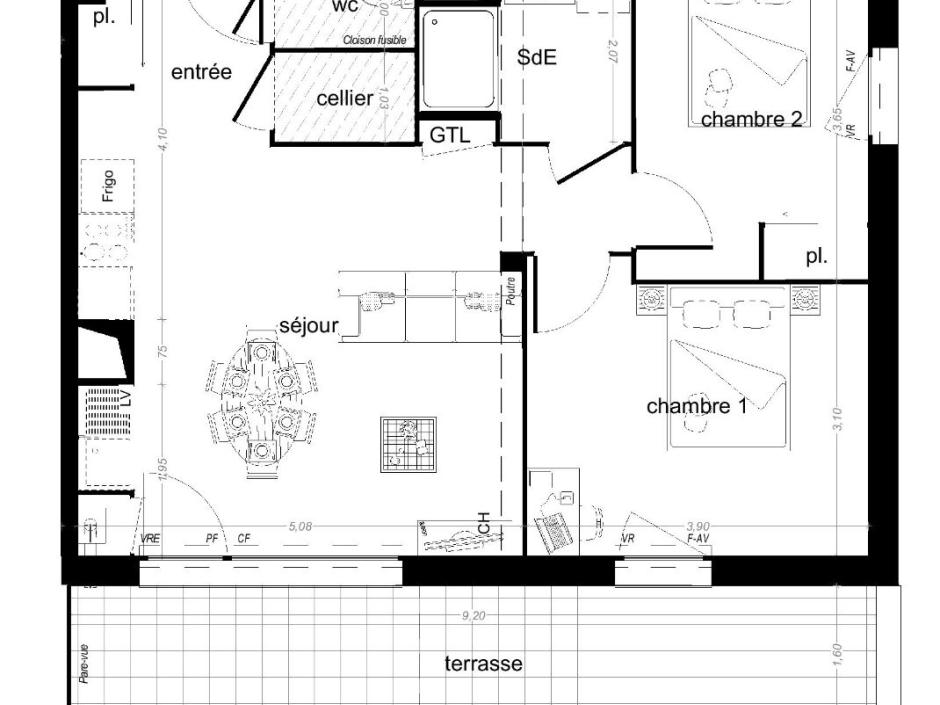
Vezin le Coquet - 3-room apartment 58.74sqm South - garden level - terrace 15.92sqm - secure private parking. Only 6 km from the center of Rennes, Vezin le Coquet has an efficient transport network, thanks to the Star network buses and the REV (Rennes Express Vélo) cycle path. Ideally located in the heart of a green setting, in a quiet contemporary residence, close to shops, schools and amenities, 3-room apartment located on the garden level, comprising: an entrance hall with closet, a living room with open kitchen giving access to a 15.92sqm terrace, two bedrooms, a shower room, separate toilet, separate toilet, storeroom. Private parking in the secure basement as well as private outdoor parking. Developer - reduced notary fees - RT2020 and DPE A standards, guaranteeing low energy consumption. Information on the risks to which this property is exposed is available on the Géorisques website: www.georisques.gouv.fr
Condominiums of 49 units (No proceedings in progress). Annual expenses : 835 euros.

Energy expenditure

A B C D E F G high performance housing extremely inefficient housing Not required
A B C D E F G very high CO2 emissions low CO2 emissions Not required

Location of property

Contactez-nous

Contact an advisor by phone or
leave us a message by filling the form

02 99 32 43 86

Financial simulation
Your loan amount Loan amount
Your loan period Loan period
Interest rate before negotiation Interest rates
Loan amount
Loan period
Monthly payments

 Reload Contact us

Biens similaires

A B C D E F G high performance housing extremely inefficient housing Not required
A B C D E F G very high CO2 emissions low CO2 emissions Not required
Affichage :