Skip to main content

Buy Apartment 3 room(s) 70 m2

360 000 €
Vannes
(
56000
)
59799-42

By registering on Cabinet Moraine website, you will benefit from numerous additional services. Registration is completely free and does not commit you to anything.

Log in
3
Rooms
2
Bedrooms
70m²
Surface

Property description

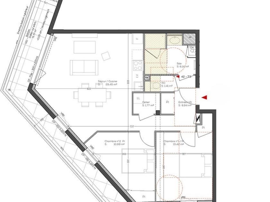
VANNES - 3-room apartment 4th floor - South- 70.12sqm - elevator - balcony 15.17sqm - garage Located not far from the hyper center of Vannes, this apartment benefits from a privileged location, nestled in a neighborhood close to nature and proximity to amenities, transport... Within a contemporary residence meeting the latest RT2020 standards, this 70.12 sqm property is located on the 4th floor with elevator. It consists of an entrance with closet, a spacious living room with open kitchen opening onto a generous balcony of 15.17 sqm, two bedrooms, a shower room and a separate toilet. A storeroom and a garage complete this functional and bright ensemble. Promoter price - reduced notary fees - Information on the risks to which this property is exposed is available on the Géorisques website: www.georisques.gouv.fr. Non-contractual photos - Suggestions for layouts
Condominiums of 22 units (No proceedings in progress). Annual expenses : 1092 euros.

Energy expenditure

A B C D E F G high performance housing extremely inefficient housing Not required
A B C D E F G very high CO2 emissions low CO2 emissions Not required

Location of property

Contactez-nous

Contact an advisor by phone or
leave us a message by filling the form

02 99 32 43 86

Financial simulation
Your loan amount Loan amount
Your loan period Loan period
Interest rate before negotiation Interest rates
Loan amount
Loan period
Monthly payments

 Reload Contact us

Biens similaires

A B C D E F G high performance housing extremely inefficient housing Not required
A B C D E F G very high CO2 emissions low CO2 emissions Not required
Affichage :