Buy Apartment 3 room(s) 60 m2
By registering on Cabinet Moraine website, you will benefit from numerous additional services. Registration is completely free and does not commit you to anything.
Log inProperty description
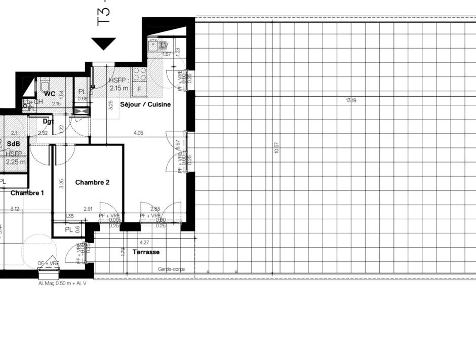
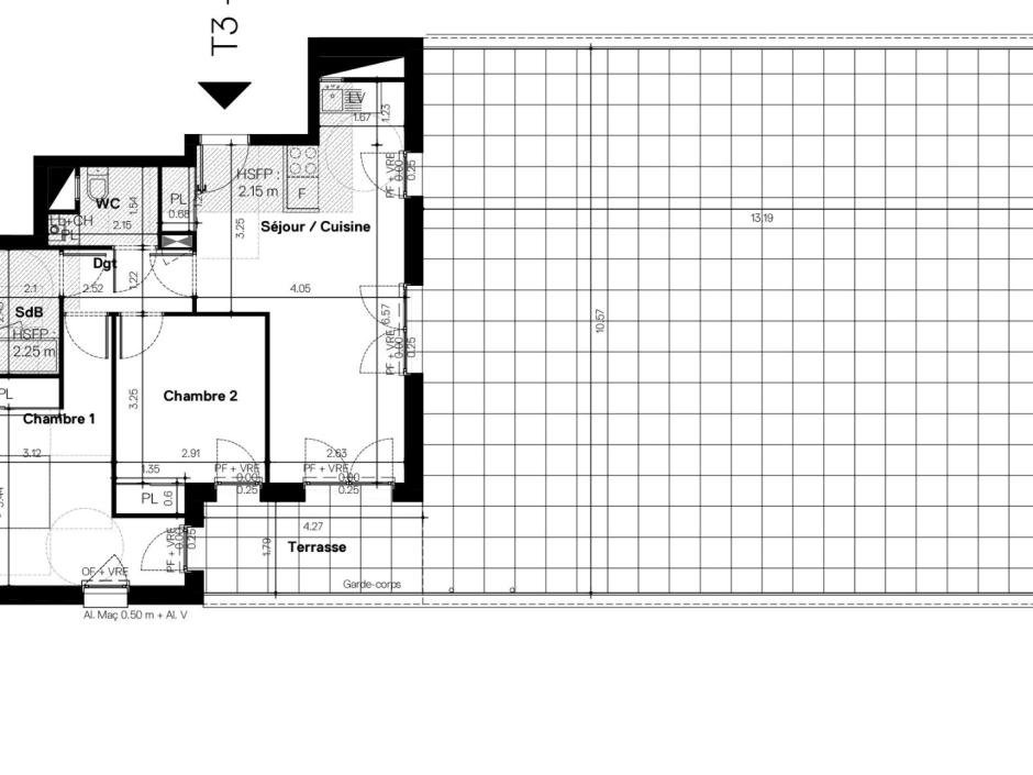
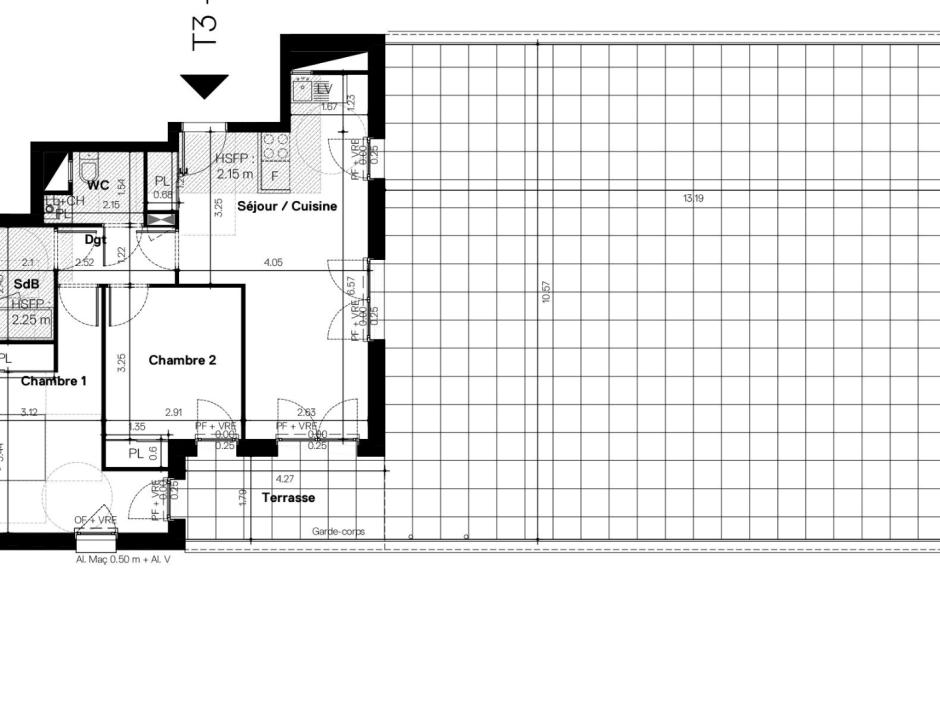
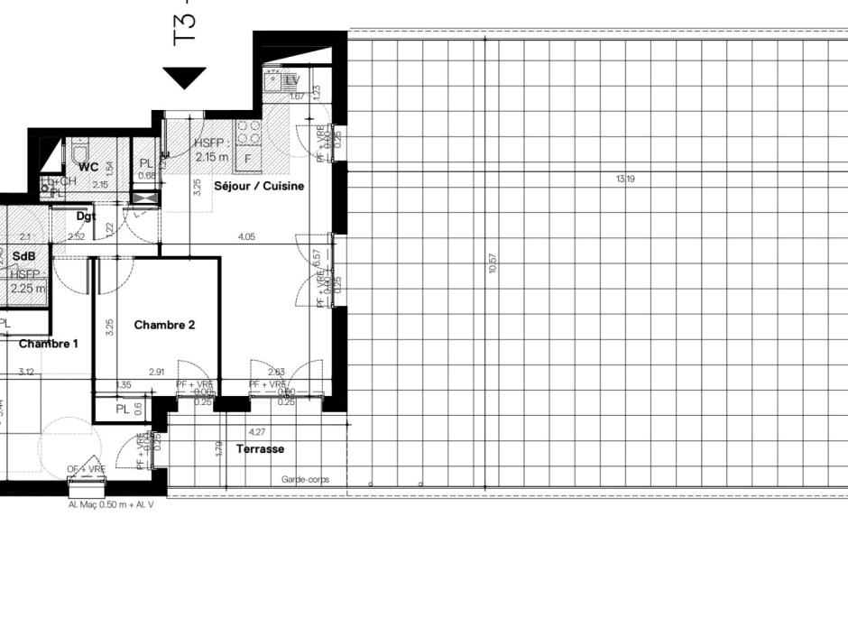
Nantes - Between Erdre and La Loire - Rond Point district of Paris - 3 room apartment 60.98sqm South East - 5th floor - lift - terrace 146.98sqm - secure parking. In a dynamic district with a warm and preserved atmosphere, offering an ideal living environment, between the Loire and the Erdre, greenery, within walking distance: restaurants, services, swimming pool, schools... but also transport allowing you to reach the city center very quickly by tram, bus, chronobus, or even by bike.. close to a park, in a residence of beautiful architecture with the latest RT 2012 standards, located on the 5th floor, beautiful 3-room apartment of 60.98sqm facing South-East with lift, comprising: an entrance with cupboard, living room with open kitchen, access to a terrace of 146.98sqm, hallway, two bedrooms with cupboards, bathroom, separate wc. Secure basement parking. Promoter price - reduced notary fees - latest RT2012 standards. www.immobilier-moraine.fr. Local advisor on site.
Condominiums of 39 units (No proceedings in progress). Annual expenses : 1000  euros.
 
 
 
 
 
 
 
 
