Achat Appartement 2 pièce(s) 41 m2
En vous inscrivant sur le site du cabinet Moraine vous bénéficierez de nombreux services complémentaires. L'inscription est totalement gratuite et ne vous engage rien.
Se connecterPrésentation du bien
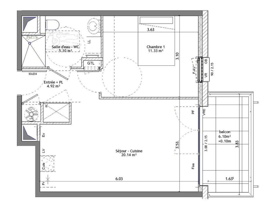
Saint Erblon - appartement 2 pièces 41.49m²  - 1er étage - balcon 6.10m² - ascenseur - stationnement.
Idéalement situé, dans une résidence d'architecture contemporaine, aux dernières normes RE2020, au sein d'un environnement calme et verdoyant, proche des commodités, des transports ... appartement 2 pièces de 41.49m²,  au 1er étage avec ascenseur, comprenant :  une entrée avec placard, un séjour salon avec cuisine donnant accès à un balcon de 6.10m², une chambre, salle d'eau avec wc.  Stationnement extérieur. Prix promoteur - frais de notaire réduits - Les informations sur les risques auxquels ce bien est exposé sont disponibles sur le site Géorisques : www.georisques.gouv.fr. Photos non contractuelles - Suggestions d'aménagements
Copropriété de 19 lots - dont 19 lots habitation. (Pas de procédure en cours).
Charges annuelles : 619 euros.
Dépenses énergétiques
Localisation du bien
Contactez-nous
          Contactez un conseiller par téléphone ou
          laissez-nous un message via notre formulaire.
        
 
 
 
 
 
 
 
 
