Aller au contenu principal

Achat Appartement 2 pièce(s) 41 m2

192 000 €
Chantepie
(
35135
)
6170-3103

En vous inscrivant sur le site du cabinet Moraine vous bénéficierez de nombreux services complémentaires. L'inscription est totalement gratuite et ne vous engage rien.

Se connecter
2
Rooms
1
Chambre(s)
41m²
Surface

Présentation du bien

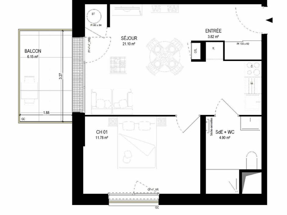
Chantepie - Appartement 2 pièces de 41.59m² Ouest - balcon de 6.15m² - 1er étage - ascenseur - stationnement privatif en sous-sol sécurisé.
A 1.5 km du centre de Chantepie et à seulement quelques minutes du centre de ville de Rennes avec le futur trambus, dans une résidence moderne aux dernières normes RT2020, proche des commerces, commodités et transports, situé au 1er étage avec ascenseur, appartement 2 pièces de 41.59m² comprenant : une entrée avec placard, séjour salon avec cuisine ouverte, accès à un balcon de 6.15m², une chambre, une salle d'eau avec wc. Stationnement en sous-sol sécurisé. Prix promoteur - Frais de notaire réduits - Exonération de la taxe foncière pendant 2 ans - Logements à faible consommation d'énergie - Utilisation de matériaux biosourcés - Confort. Dpe A. Prix promoteur - frais de notaire réduits - normes RT2020. Les informations sur les risques auxquels ce bien est exposé sont disponibles sur le site Géorisques : www.georisques.gouv.fr. Photos non contractuelles - Suggestions d'aménagements
Copropriété de 38 lots - dont 38 lots habitation. (Pas de procédure en cours).

Charges annuelles : 648 euros.

Dépenses énergétiques

A B C D E F G logement très performant logement extrêmement peu performant Non requis
A B C D E F G emissions de CO₂ très importantes peu d'émission de CO₂ Non requis

Localisation du bien

Contactez-nous

Contactez un conseiller par téléphone ou
laissez-nous un message via notre formulaire.

02 99 32 43 86

Simulation financière
Montant de votre prêt Montant du prêt
Durée de votre prêt Durée du prêt
Taux d'intérêt avant négociation Taux d'intérêts
Montant du prêt
Durée du prêt
Mensualités

 Recharger Contactez-nous

Biens similaires

A B C D E F G logement très performant logement extrêmement peu performant Non requis
A B C D E F G emissions de CO₂ très importantes peu d'émission de CO₂ Non requis
Affichage :