Achat Appartement 2 pièce(s) 41 m2
En vous inscrivant sur le site du cabinet Moraine vous bénéficierez de nombreux services complémentaires. L'inscription est totalement gratuite et ne vous engage rien.
Se connecterPrésentation du bien
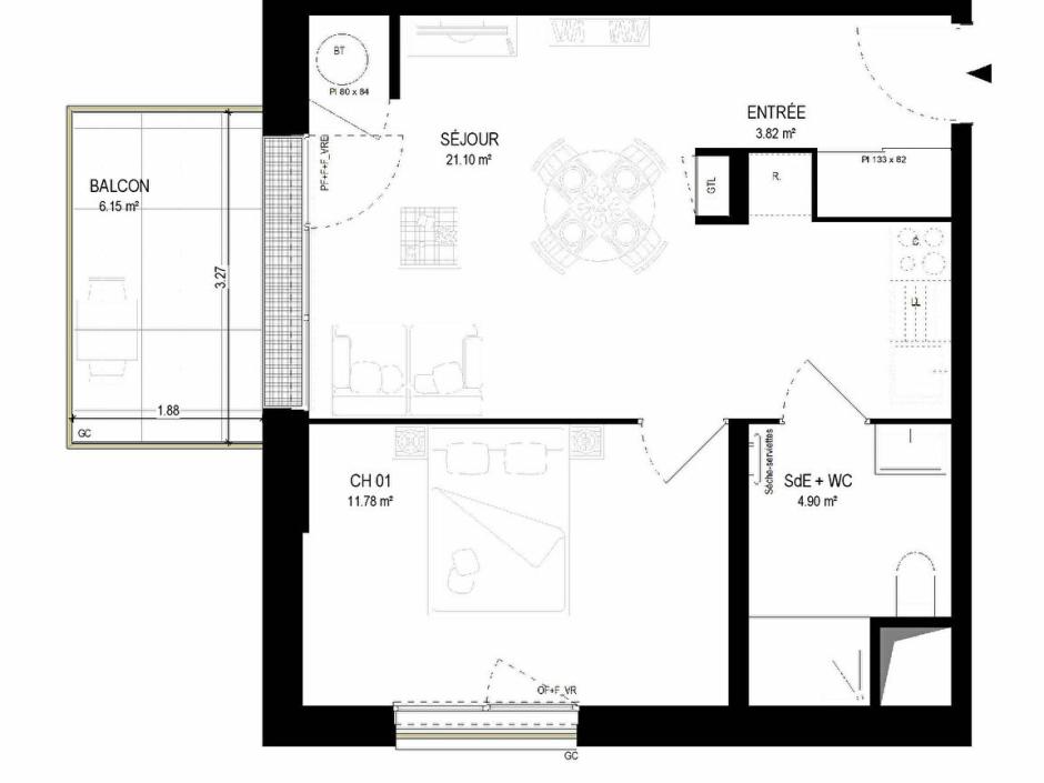
Chantepie - Appartement 2 pièces de 41.59m² Ouest - balcon de 6.15m² - 1er étage - ascenseur - stationnement privatif en sous-sol sécurisé.
A 1.5 km du centre de Chantepie et à seulement quelques minutes du centre de ville de Rennes avec le futur trambus, dans une résidence moderne aux dernières normes RT2020, proche des commerces, commodités et transports, situé au 1er étage avec ascenseur, appartement 2 pièces de 41.59m² comprenant : une entrée avec placard, séjour salon avec cuisine ouverte, accès à un balcon de 6.15m², une chambre, une salle d'eau avec wc. Stationnement en sous-sol sécurisé. Prix promoteur - Frais de notaire réduits - Exonération de la taxe foncière pendant 2 ans - Logements à faible consommation d'énergie - Utilisation de matériaux biosourcés - Confort. Dpe A. Prix promoteur - frais de notaire réduits - normes RT2020. Les informations sur les risques auxquels ce bien est exposé sont disponibles sur le site Géorisques : www.georisques.gouv.fr. Photos non contractuelles - Suggestions d'aménagements
Copropriété de 38 lots - dont 38 lots habitation. (Pas de procédure en cours).
Charges annuelles : 648 euros.
Dépenses énergétiques
Localisation du bien
Contactez-nous
Contactez un conseiller par téléphone ou
laissez-nous un message via notre formulaire.