Aller au contenu principal

Achat Appartement 5 pièce(s) 102 m2

350 787 €
Saint-Malo
(
35400
)
73291D-35C

En vous inscrivant sur le site du cabinet Moraine vous bénéficierez de nombreux services complémentaires. L'inscription est totalement gratuite et ne vous engage rien.

Se connecter
5
Rooms
3
Chambre(s)
1
Salle(s) de bain
102m²
Surface

Présentation du bien

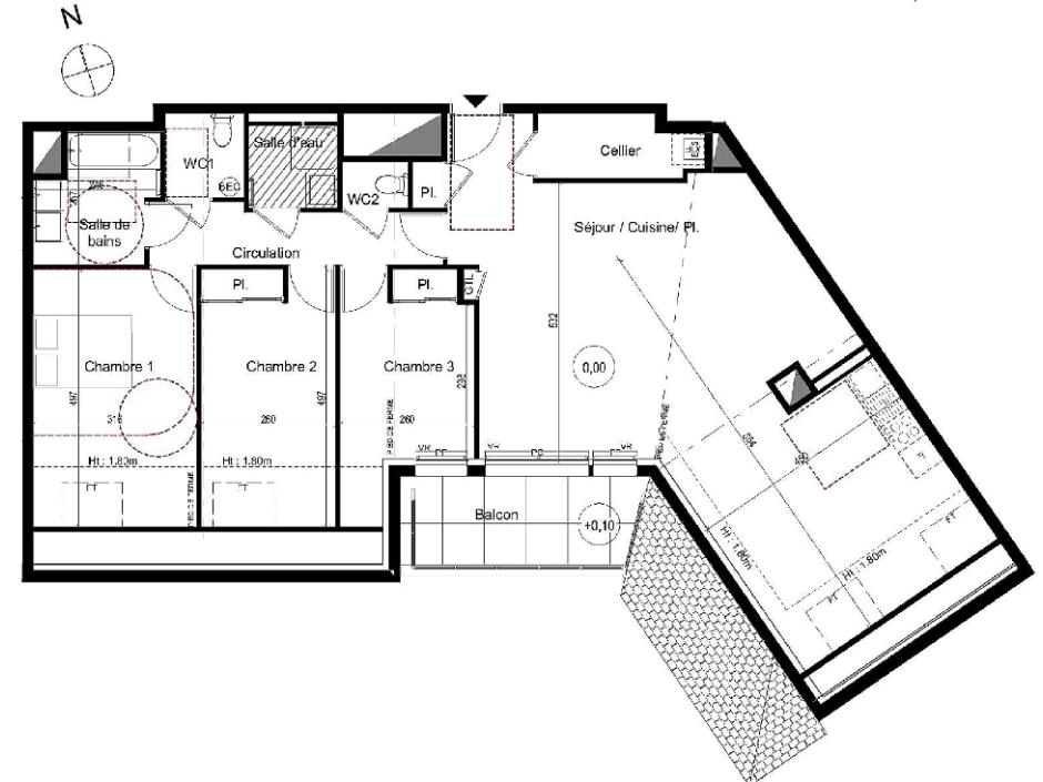
VENDU - CABINET MORAINE - SAINT MALO - Appartement 5 pièces Sud 3ème étage et dernier étage - balcon de 9.17 m² garage ! et stationnement privatif
Prix taux de tva 5.5% - conditions nous consulter.
Proche de St Servan, à 1.6 km de la Gare, non loin des plages (1.9km) et de l'Intra-Muros, à proximité des commodités et commerces, secteur calme, dans une résidence aux dernières normes RT2012, d'architecture contemporaine, appartement 5 pièces Exposé Sud comprenant : une entrée avec placard, séjour salon avec cuisine ouverte, arrière cuisine, 3 chambres, salle de bains, salle d'eau, 2 wcs indépendants. Grand balcon de 9.17m², Garage et Stationnement privatif Frais de notaire réduits- prix promoteur- www.immobilier-moraine.fr 02 99 32 43 86
Copropriété de 19 lots (Pas de procédure en cours).

Charges annuelles : 1450 euros.

Dépenses énergétiques

A B C D E F G logement très performant logement extrêmement peu performant Non requis
A B C D E F G emissions de CO₂ très importantes peu d'émission de CO₂ Non requis

Localisation du bien

Contactez-nous

Contactez un conseiller par téléphone ou
laissez-nous un message via notre formulaire.

02 99 32 43 86

Simulation financière
Montant de votre prêt Montant du prêt
Durée de votre prêt Durée du prêt
Taux d'intérêt avant négociation Taux d'intérêts
Montant du prêt
Durée du prêt
Mensualités

 Recharger Contactez-nous

Biens similaires

A B C D E F G logement très performant logement extrêmement peu performant Non requis
A B C D E F G emissions de CO₂ très importantes peu d'émission de CO₂ Non requis
Affichage :