Aller au contenu principal

Achat Appartement 4 pièce(s) 84 m2

284 850 €
Saint-Malo
(
35400
)
7224D-36C

En vous inscrivant sur le site du cabinet Moraine vous bénéficierez de nombreux services complémentaires. L'inscription est totalement gratuite et ne vous engage rien.

Se connecter
4
Rooms
3
Chambre(s)
84m²
Surface

Présentation du bien

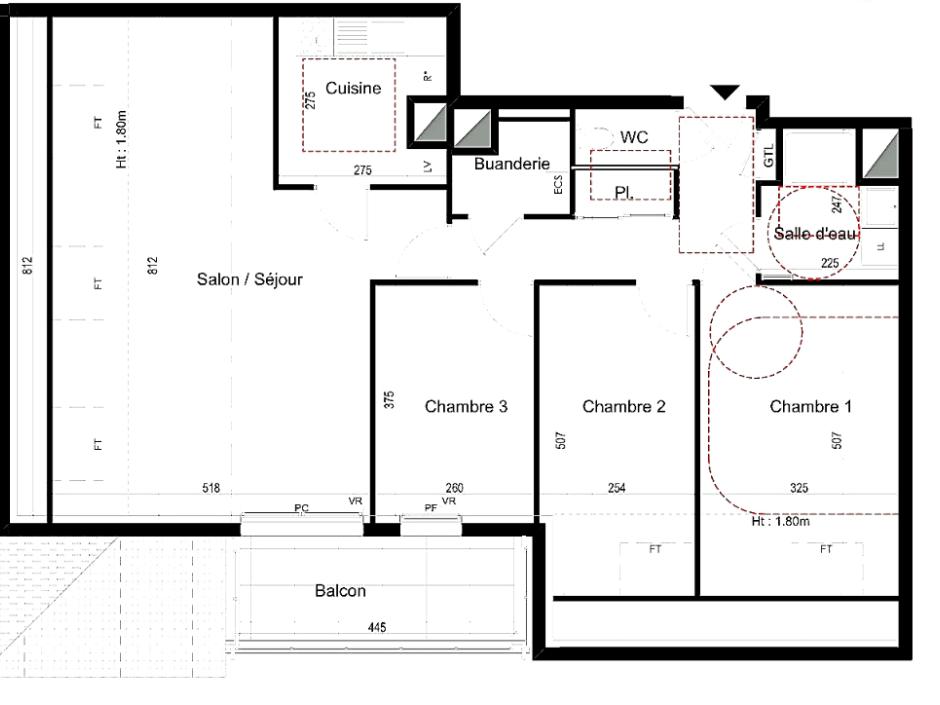
VENDU PAR NOS SOINS - SAINT MALO - Appartement 4 pièces Sud 84m² sh - 102.18m² au sol - 3ème étage - balcon de 7.57 m² garage ! et stationnement privatif
Achat uniquement en principal - taux de tva 5.5% - Conditions nous consulter
A 1.6 km de la Gare, non loin des plages (1.9km) et de l'Intra-Muros, à proximité de toutes commodités, des commerces et toutes commodités, dans un secteur calme, sur les hauteurs de St Malo, dans une résidence aux dernières normes RT2012, d'architecture contemporaine, appartement 4 pièces Exposé Sud comprenant : une entrée avec placard, séjour salon, cuisine indépendante, 3 chambres, salle d'eau, buanderie, wc. Grand balcon de 7.57m², Garage et Stationnement privatif Frais de notaire réduits- prix promoteur. www.immobilier-moraine.fr 02 99 32 43 86
Copropriété de 19 lots.

Charges annuelles : 1209 euros.

Dépenses énergétiques

A B C D E F G logement très performant logement extrêmement peu performant Non communiqué
A B C D E F G emissions de CO₂ très importantes peu d'émission de CO₂ Non requis

Localisation du bien

Contactez-nous

Contactez un conseiller par téléphone ou
laissez-nous un message via notre formulaire.

02 99 32 43 86

Simulation financière
Montant de votre prêt Montant du prêt
Durée de votre prêt Durée du prêt
Taux d'intérêt avant négociation Taux d'intérêts
Montant du prêt
Durée du prêt
Mensualités

 Recharger Contactez-nous

Biens similaires

A B C D E F G logement très performant logement extrêmement peu performant Non communiqué
A B C D E F G emissions de CO₂ très importantes peu d'émission de CO₂ Non requis
Affichage :