Aller au contenu principal

Achat Appartement 4 pièce(s) 84 m2

545 000 €
Saint-Malo
(
35400
)
6264-22

En vous inscrivant sur le site du cabinet Moraine vous bénéficierez de nombreux services complémentaires. L'inscription est totalement gratuite et ne vous engage rien.

Se connecter
4
Rooms
3
Chambre(s)
84m²
Surface

Présentation du bien

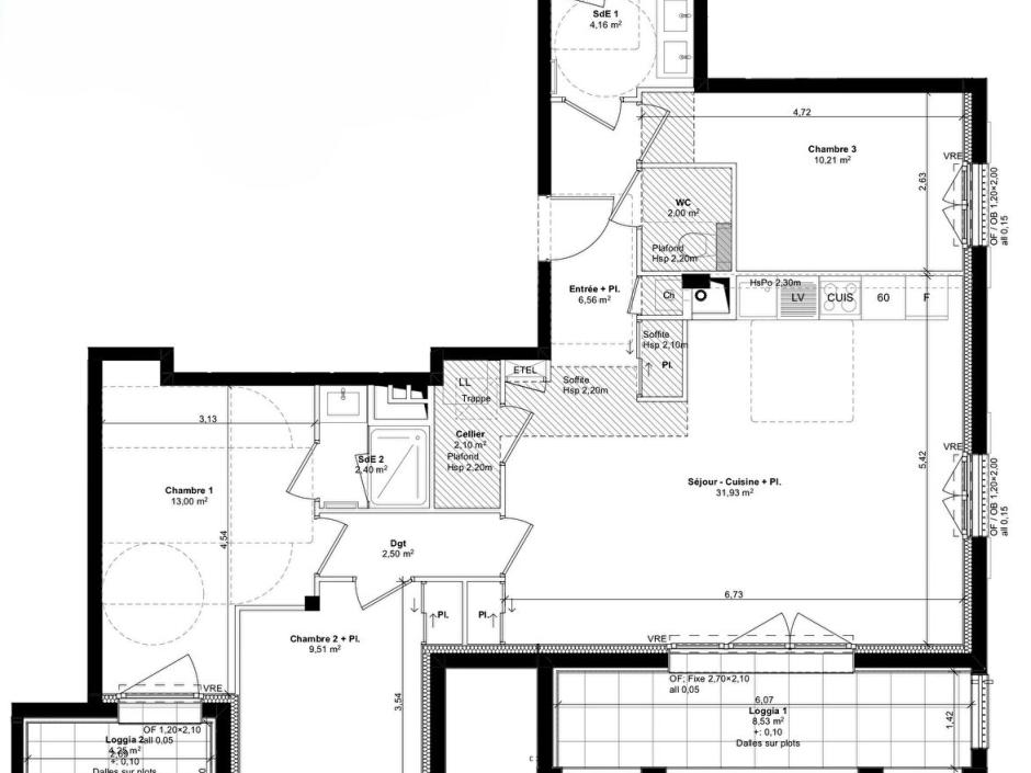
Saint Malo - Appartement 4 pièces 84.37m² Sud- loggias de 8.53m² et 4.25m² - 2ème étage - ascenseur - Garage et stationnement en sous-sol sécurisé
Dans un quartier résidentiel calme, proche des plages, commodités et commerces, .. au sein d'une résidence conforme aux normes RT2020, alliant confort et performance énergétique, au 2ème étage avec ascenseur, appartement de 4 pièces de 82.35 m² exposé Sud, comprenant : une entrée avec placard, un vaste séjour salon avec cuisine ouverte donnant accès à une loggia de 8.53m², d'une buanderie/cellier, dégagement, trois chambres dont une avec loggia de 4.25m², deux salles d'eau, WC indépendant. Un garage et un stationnement en sous-sol sécurisés complètent ce bien. Prestations de qualité : Performances énergétiques RT2020 - Accès sécurisé par badge et visiophone.. Prix promoteur - frais de notaire réduits. Les informations sur les risques auxquels ce bien est exposé sont disponibles sur le site Géorisques : www.georisques.gouv.fr.
Copropriété de 57 lots - dont 17 lots habitation.

Charges annuelles : 1209 euros.

Dépenses énergétiques

A B C D E F G logement très performant logement extrêmement peu performant Non requis
A B C D E F G emissions de CO₂ très importantes peu d'émission de CO₂ Non requis

Localisation du bien

Contactez-nous

Contactez un conseiller par téléphone ou
laissez-nous un message via notre formulaire.

02 99 32 43 86

Simulation financière
Montant de votre prêt Montant du prêt
Durée de votre prêt Durée du prêt
Taux d'intérêt avant négociation Taux d'intérêts
Montant du prêt
Durée du prêt
Mensualités

 Recharger Contactez-nous

Biens similaires

A B C D E F G logement très performant logement extrêmement peu performant Non requis
A B C D E F G emissions de CO₂ très importantes peu d'émission de CO₂ Non requis
Affichage :