Aller au contenu principal

Achat Appartement 4 pièce(s) 80 m2

599 000 €
Rennes
(
35000
)
60697-A501

En vous inscrivant sur le site du cabinet Moraine vous bénéficierez de nombreux services complémentaires. L'inscription est totalement gratuite et ne vous engage rien.

Se connecter
4
Rooms
3
Chambre(s)
1
Salle(s) de bain
80m²
Surface

Présentation du bien

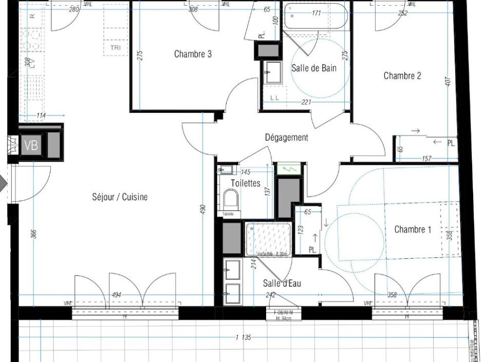
RENNES - Gayeulles / Jeanne d'Arc - Appartement 4 pièces de 80.23m² Sud - 5ème étage - ascenseur - terrasses 45.23m² - garage en sous-sol sécurisé.
Idéalement situé dans le quartier Gayeulles / Jeanne d'Arc, cet appartement de 4 pièces bénéficie d'un emplacement intéressant, à deux pas du métro, permettant de rejoindre rapidement le centre-ville (Sainte-Anne en 10 minutes, Gare de Rennes en 15 minutes). Proche des commerces, des écoles et des transports en commun, il se trouve également à moins de 500 mètres des parcs, offrant un cadre idéal pour se détendre. Situé au 5? étage avec ascenseur, cet appartement lumineux de 80,23 m², orienté sud, dispose d'un séjour avec cuisine ouverte donnant accès à deux terrasses : l'une de 29,94 m² et l'autre de 15,29 m². Il comprend trois chambres avec placards, dont une avec salle d'eau privative, ainsi qu'une salle de bains et des toilettes indépendantes. Toutes les pièces donnent accès aux terrasses, offrant un agréable prolongement de l'espace de vie. Un garage sécurisé en sous-sol complète ce bien. Enfin, le chauffage, assuré par le réseau de chaleur urbain, garantit une solution à la fois économique et écologique.. Contactez-nous dès maintenant pour en savoir plus et réserver votre futur appartement !
Prix promoteur - Les informations sur les risques auxquels ce bien est exposé sont disponibles sur le site Géorisques : www.georisques.gouv.fr. Photos non contractuelles - Suggestions d'aménagements
Copropriété de 43 lots - dont 43 lots habitation. (Pas de procédure en cours).

Charges annuelles : 1152 euros.

Dépenses énergétiques

A B C D E F G logement très performant logement extrêmement peu performant Non requis
A B C D E F G emissions de CO₂ très importantes peu d'émission de CO₂ Non requis

Localisation du bien

Contactez-nous

Contactez un conseiller par téléphone ou
laissez-nous un message via notre formulaire.

02 99 32 43 86

Simulation financière
Montant de votre prêt Montant du prêt
Durée de votre prêt Durée du prêt
Taux d'intérêt avant négociation Taux d'intérêts
Montant du prêt
Durée du prêt
Mensualités

 Recharger Contactez-nous

Biens similaires

A B C D E F G logement très performant logement extrêmement peu performant Non requis
A B C D E F G emissions de CO₂ très importantes peu d'émission de CO₂ Non requis
Affichage :