Aller au contenu principal

Achat Appartement 3 pièce(s) 60 m2

Prix non communiqué
Nantes
(
44000
)
54229-A502

En vous inscrivant sur le site du cabinet Moraine vous bénéficierez de nombreux services complémentaires. L'inscription est totalement gratuite et ne vous engage rien.

Se connecter
3
Rooms
2
Chambre(s)
1
Salle(s) de bain
60m²
Surface

Présentation du bien

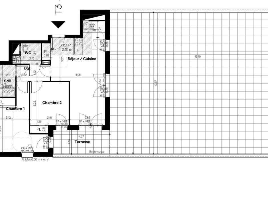
Nantes - Entre Erdre et La Loire - quartier Rond Point de Paris - Appartement 3 pièces 60.98m² Sud Est - 5ème étage - ascenseur - terrasse 146.98m² - stationnement sécurisé.
Dans un quartier dynamique à l'ambiance chaleureuse et préservée, offrant un cadre de vie idéal, entre la Loire et l'Erdre, la verdure, à proximité à pied : des restaurants, des services, piscine, écoles.. mais aussi des transports permettant de rejoindre très rapidement le centre-ville par le tramway, le bus, le chronobus, ou encore, à vélo.. proche d'un parc, dans une résidence de belle architecture aux dernières normes RT 2012, situé au 5ème étage, bel appartement 3 pièces de 60.98m² aspecté Sud-Est avec ascenseur, comprenant : une entrée avec placard, séjour salon avec cuisine ouverte, accès sur une terrasse de 146.98m², dégagement, deux chambres avec placard, salle de bains, wc indépendant. Stationnement en sous-sol sécurisé.
Prix promoteur - frais de notaire réduits - dernières normes RT2012.

Copropriété de 39 lots - dont 39 lots habitation.

Charges annuelles : 1000 euros.

Dépenses énergétiques

A B C D E F G logement très performant logement extrêmement peu performant Non requis
A B C D E F G emissions de CO₂ très importantes peu d'émission de CO₂ Non requis

Localisation du bien

Contactez-nous

Contactez un conseiller par téléphone ou
laissez-nous un message via notre formulaire.

02 99 32 43 86

Simulation financière
Montant de votre prêt Montant du prêt
Durée de votre prêt Durée du prêt
Taux d'intérêt avant négociation Taux d'intérêts
Montant du prêt
Durée du prêt
Mensualités

 Recharger Contactez-nous

Biens similaires

A B C D E F G logement très performant logement extrêmement peu performant Non requis
A B C D E F G emissions de CO₂ très importantes peu d'émission de CO₂ Non requis
Affichage :