Aller au contenu principal

Achat Appartement 4 pièce(s) 96 m2

445 000 €
Bruz
(
35170
)
6223-01

En vous inscrivant sur le site du cabinet Moraine vous bénéficierez de nombreux services complémentaires. L'inscription est totalement gratuite et ne vous engage rien.

Se connecter
4
Rooms
3
Chambre(s)
96m²
Surface

Présentation du bien

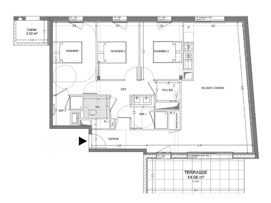
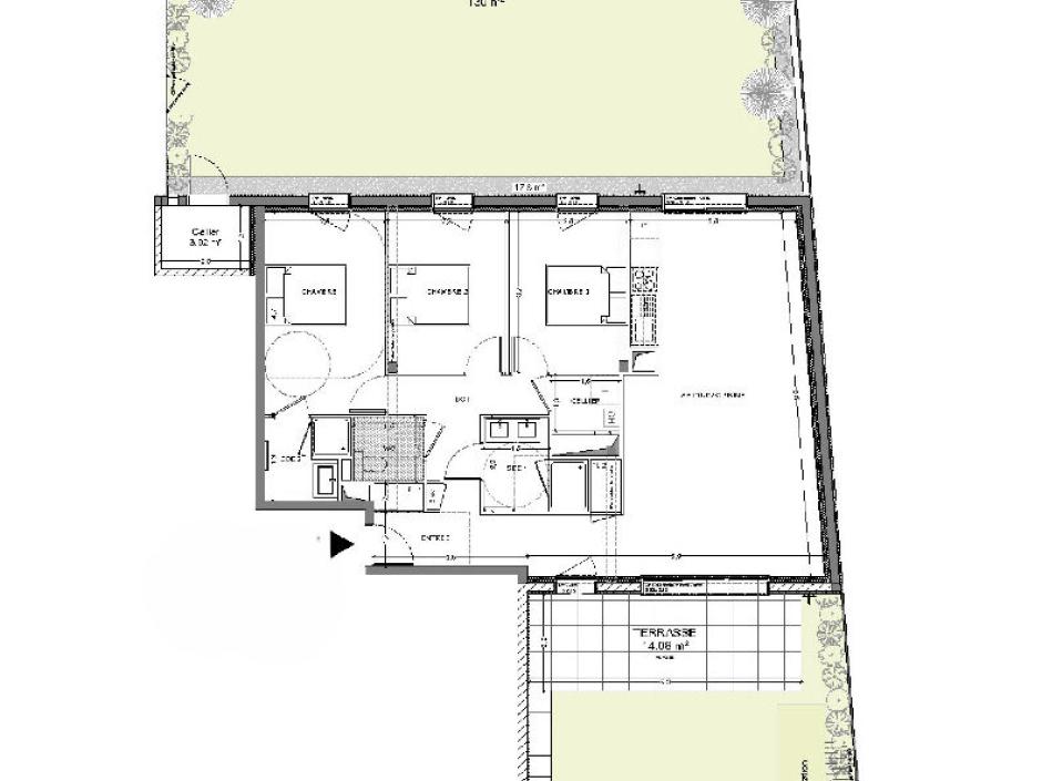
Bruz - Appartement 4 pièces 96.31m² Sud - terrasse de 14.08m² et jardin de 194.96m² - garage-en sous-sol sécurisé - cellier - Frais de notaire offerts
Proche de l'hyper centre, des commerces et commodités, découvrez cet appartement 4 pièces, situé en rez-de-jardin d'une résidence contemporaine conforme aux normes environnementales RT2020, offrant une haute performance énergétique et acoustique. D'une surface habitable de 96.31m², cet appartement exposé au Sud se compose d'une entrée avec placard, dégagement, d'un vaste séjour salon avec cuisine, ouvrant sur le jardin de 194.96m² et à la terrasse de 14.08m². L'espace nuit comprend un dégagement, trois chambres, deux salle d'eau, un WC indépendant et un cellier offrant un rangement pratique. Un garage sécurisé en sous-sol complète cet ensemble ainsi qu'un cellier. Côté mobilité, la localisation est idéale : la gare TER de Bruz permet de rejoindre Rennes en seulement 10 minutes, les lignes de bus STAR facilitent les déplacements locaux, et la proximité de l'aéroport Rennes Bretagne renforce la connectivité de ce bien. Prix promoteur - Les informations sur les risques auxquels ce bien est exposé sont disponibles sur le site Géorisques : www.georisques.gouv.fr.
Copropriété de 39 lots - dont 17 lots habitation.

Charges annuelles : 1200 euros.

Dépenses énergétiques

A B C D E F G logement très performant logement extrêmement peu performant Non requis
A B C D E F G emissions de CO₂ très importantes peu d'émission de CO₂ Non requis

Localisation du bien

Contactez-nous

Contactez un conseiller par téléphone ou
laissez-nous un message via notre formulaire.

02 99 32 43 86

Simulation financière
Montant de votre prêt Montant du prêt
Durée de votre prêt Durée du prêt
Taux d'intérêt avant négociation Taux d'intérêts
Montant du prêt
Durée du prêt
Mensualités

 Recharger Contactez-nous

Biens similaires

A B C D E F G logement très performant logement extrêmement peu performant Non requis
A B C D E F G emissions de CO₂ très importantes peu d'émission de CO₂ Non requis
Affichage :