Achat Appartement 3 pièce(s) 64 m2
En vous inscrivant sur le site du cabinet Moraine vous bénéficierez de nombreux services complémentaires. L'inscription est totalement gratuite et ne vous engage rien.
Se connecterPrésentation du bien
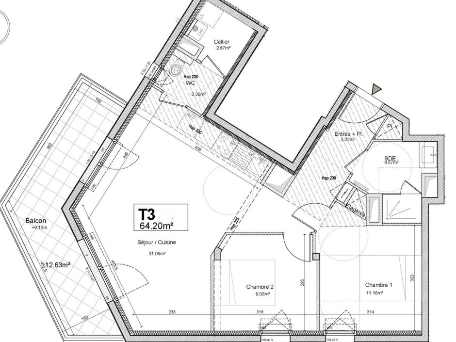
BETTON - Appartement 3 pièces de 64.20m² Sud Ouest- 2ème étage - balcon 12.63m² - stationnements en sous-sol sécurisés.
Idéalement situé à Bruz, cet appartement 3 pièces bénéficie d'un bon emplacement au sein d'une petite résidence répondant aux normes RT2020. A deux pas des commerces de proximité, de la gare, des berges du canal et à seulement quelques minutes du marché et des écoles, il offre un cadre de vie pratique et serein. Situé au 2ème étage avec ascenseur, cet appartement 3 pièces de 64.20 m² se compose d'une entrée avec placard, d'un séjour salon avec cuisine ouverte donnant sur un balcon de 12.63m². Il dispose également de deux chambres, placard, d'une salle d'eau, d'un WC indépendant et d'un cellier. Stationnements en sous-sol sécurisés viennent compléter ce bien. Un bon emplacement, des prestations de qualité et un balcon s'ouvrant vers l'extérieur : une opportunité à ne pas manquer. Prix promoteur - frais de notaire réduits. Contactez-nous dès aujourd'hui pour découvrir les appartements disponibles. Les informations sur les risques auxquels ce bien est exposé sont disponibles sur le site Géorisques : www.georisques.gouv.fr.
Copropriété de 30 lots - dont 10 lots habitation. (Pas de procédure en cours).
Charges annuelles : 921 euros.
Dépenses énergétiques
Localisation du bien
Contactez-nous
Contactez un conseiller par téléphone ou
laissez-nous un message via notre formulaire.