Skip to main content

Buy Apartment 2 room(s) 46 m2

186 500 €
Vitré
(
35500
)
6161-B101

By registering on Cabinet Moraine website, you will benefit from numerous additional services. Registration is completely free and does not commit you to anything.

Log in
2
Rooms
1
Bedroom
46m²
Surface

Property description

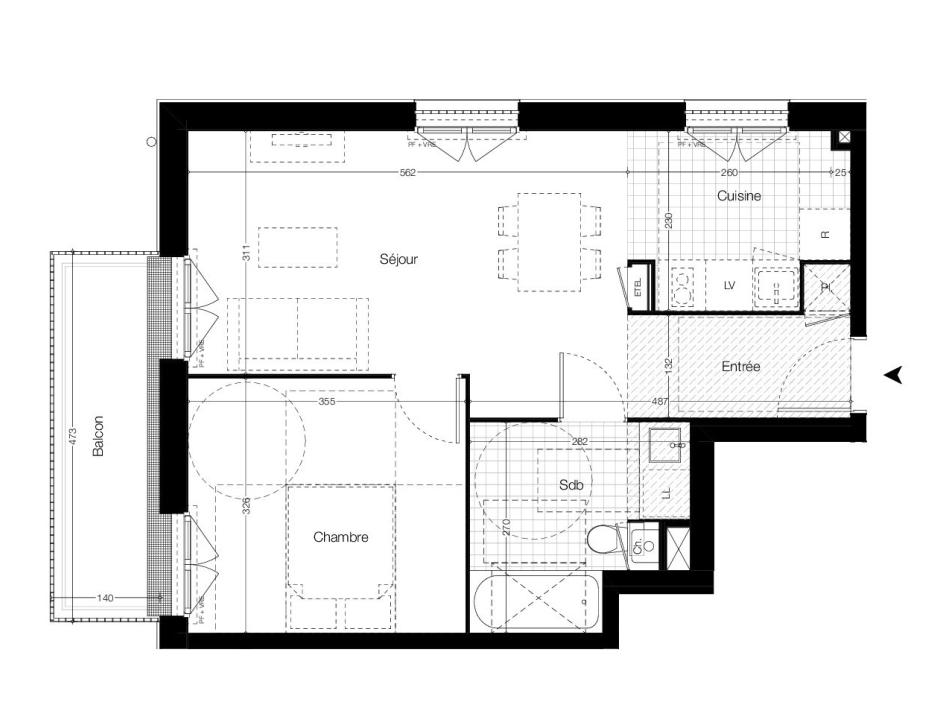
VITRE - 2-room apartment 46.50sqm West - 1st floor - balcony 6.30sqm - elevator - secure underground parking. In a contemporary residence with the latest standards, not far from the center of Vitré, close to shops, amenities, sports and cultural facilities, 2-room apartment of 46.50sqm facing West located on the 1st floor with elevator comprising: an entrance with closet, a living room with open kitchen, opening onto a balcony of 6.30sqm, a bedroom, a bathroom with toilet. Secure underground parking. Promoter price - reduced notary fees - RT2020 standards. Information on the risks to which this property is exposed is available on the Géorisques website: www.georisques.gouv.fr. Non-contractual photos - Suggestions for layouts
Condominiums of 38 units (No proceedings in progress). Annual expenses : 648 euros.

Energy expenditure

A B C D E F G high performance housing extremely inefficient housing Not required
A B C D E F G very high CO2 emissions low CO2 emissions Not required

Location of property

Contactez-nous

Contact an advisor by phone or
leave us a message by filling the form

02 99 32 43 86

Financial simulation
Your loan amount Loan amount
Your loan period Loan period
Interest rate before negotiation Interest rates
Loan amount
Loan period
Monthly payments

 Reload Contact us

Biens similaires

A B C D E F G high performance housing extremely inefficient housing Not required
A B C D E F G very high CO2 emissions low CO2 emissions Not required
Affichage :