Buy Apartment 4 room(s) 80 m2
By registering on Cabinet Moraine website, you will benefit from numerous additional services. Registration is completely free and does not commit you to anything.
Log inProperty description
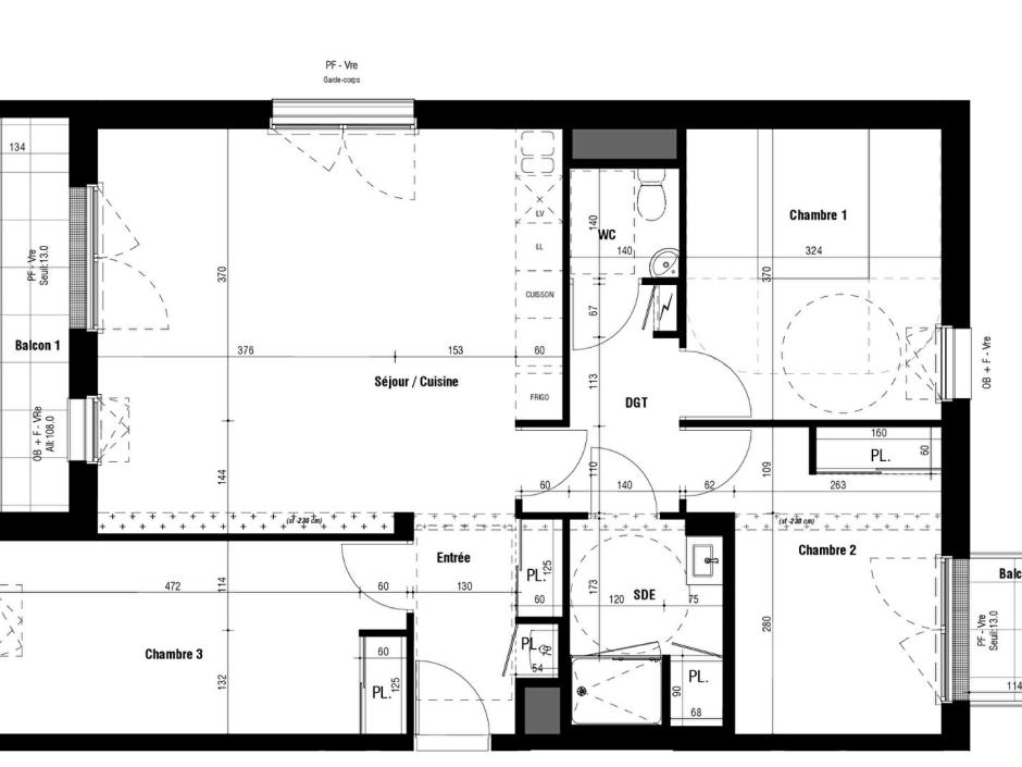
ST NAZAIRE - 250 meters from the sea - 4-room apartment 80.87sqm West - 4th floor - elevator - balconies for 8.80sqm - secure underground garage. A stone's throw from the sea, downtown shops, cultural venues, amenities, nestled on the 4th floor of a luxury residence with elevator - 4-room apartment of 80.87sqm facing West, comprising: an entrance with closet, living room with open kitchen, access to a balcony to the West, 3 bedrooms including one with its balcony, closets, shower room, toilet, secure underground garage. Promoter price - reduced notary fees. Information on the risks to which this property is exposed is available on the Géorisques website: www.georisques.gouv.fr. Non-contractual photos - Suggestions for layouts
Condominiums of 52 units (No proceedings in progress). Annual expenses : 1152 euros.