Buy Apartment 2 room(s) 40 m2
By registering on Cabinet Moraine website, you will benefit from numerous additional services. Registration is completely free and does not commit you to anything.
Log inProperty description
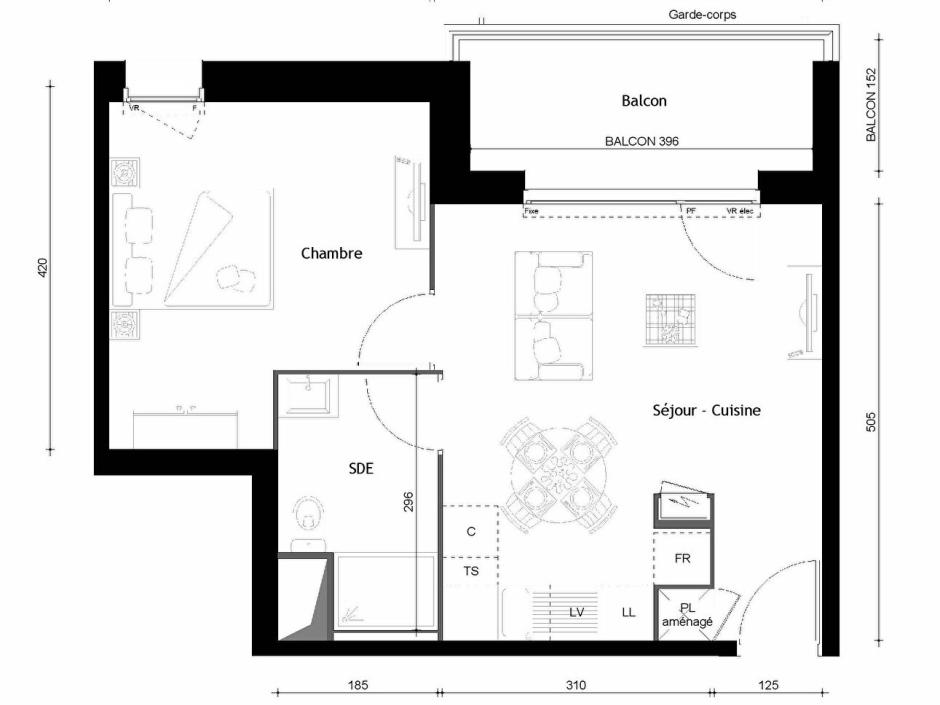
ACIGNE - 1-Bedroom Apartment, 40.17 sq m, West-facing - 2nd floor - elevator - 6.11 sq m balcony - parking. Close to Rennes and Cesson-Sévigné, ideally located in Acigné, within a residence compliant with the latest RT 2020 standards, this 1-bedroom apartment offers 40.17 sq m of living space. Situated on the 2nd floor with elevator access, it comprises an entrance hall with a built-in wardrobe, a west-facing living room with an open-plan kitchen leading onto a 6.11 sq m balcony, a bedroom, and a shower room with WC. A secure underground parking space completes this property. Amenities are within walking distance: bakery, shops, nursery and primary schools, after-school care, and a STAR bus stop... An ideal environment to live, grow up, and settle down. Developer price - reduced notary fees. Information on the risks to which this property is exposed is available on the Géorisques website: www.georisques.gouv.fr
Condominiums of 53 units. Annual expenses : 576 euros.