Skip to main content

Buy Apartment 4 room(s) 92 m2

459 900 €
Saint-Malo
(
35400
)
52819-A002

By registering on Cabinet Moraine website, you will benefit from numerous additional services. Registration is completely free and does not commit you to anything.

Log in
4
Rooms
3
Bedrooms
1
Bathroom
92m²
Surface

Property description

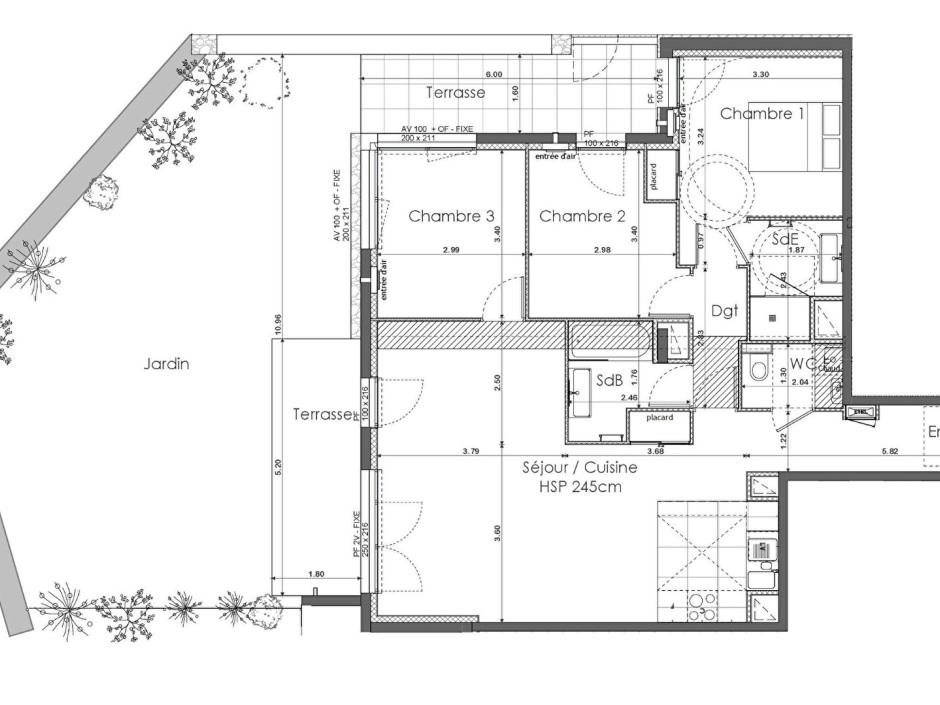
SAINT MALO - ST SERVAN CENTER - 4-room apartment 92.70sqm West - 19.50sqm terraces and 32.50sqm garden, cellar - secure underground parking. NOTARY FEES OFFERED Ideally located in the heart of Saint-Servan, this apartment benefits from an exceptional location, close to shops, the lively center of Saint-Servan, the docks, as well as the beach and the Bas-Sablons port. Only 300 meters from the Town Hall Square and the market, 1 km from the Historic Center - Intra-Muros and 1.3 km from the train station, this property combines convenience and practicality. Schools, transport, a doctor's office and hospital are also accessible in a few minutes. In a contemporary residence, offering neat and elegant architecture, discover this 4-room apartment of 92.70 sqm on the garden level, designed to offer comfort and modernity. The entrance leads to a spacious living room with an open kitchen, bathed in light thanks to its direct access to a west-facing terrace and a private 32.50 sqm garden, perfect for enjoying sunny days. The hallway leads to three bedrooms, each with access to a second terrace, providing additional outdoor space for a unique living environment. You will also appreciate a bathroom, a shower room, as well as a separate toilet, ensuring comfort and functionality. In addition, this apartment has private underground parking and a cellar, essential assets to facilitate your daily life. Promoter price, with reduced notary fees, this property is an opportunity for those who wish to settle in a setting between land and sea, or invest in a dynamic and sought-after neighborhood. Information on the risks to which this property is exposed is available on the Géorisques website: www.georisques.gouv.fr. Non-contractual photos - Suggestions for layouts
Condominiums of 39 units (No proceedings in progress). Annual expenses : 1339 euros.

Energy expenditure

A B C D E F G high performance housing extremely inefficient housing Not required
A B C D E F G very high CO2 emissions low CO2 emissions Not required

Location of property

Contactez-nous

Contact an advisor by phone or
leave us a message by filling the form

02 99 32 43 86

Financial simulation
Your loan amount Loan amount
Your loan period Loan period
Interest rate before negotiation Interest rates
Loan amount
Loan period
Monthly payments

 Reload Contact us

Biens similaires

A B C D E F G high performance housing extremely inefficient housing Not required
A B C D E F G very high CO2 emissions low CO2 emissions Not required
Affichage :