Skip to main content

Buy House 4 room(s) 92 m2

499 000 €
Dinard
(
35800
)
49750-M1

By registering on Cabinet Moraine website, you will benefit from numerous additional services. Registration is completely free and does not commit you to anything.

Log in
4
Rooms
3
Bedrooms
1
Bathroom
92m²
Surface

Property description

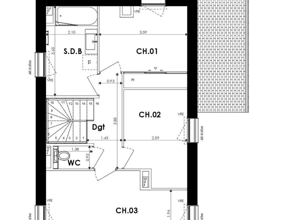
DINARD - 4-room house of 92.30sqm - garden of 233.50sqm - parking Ideally located a few steps from the sea and the beaches, in a peaceful and residential area in the heart of a green environment, this contemporary house of 92.30 sqm offers a privileged living environment. Only 5 minutes from Saint-Malo by car and 2.5 km from the city center of Dinard, it consists of: On the ground floor: an entrance hall with storage space, a beautiful bright living room with open kitchen, giving access to a 12 sqm terrace and a landscaped garden of 208.70 sqm, as well as a shower room and separate toilet. Upstairs: a landing leads to three comfortable bedrooms, a bathroom and additional toilet. Outdoor parking spaces complete this property. Advantages: promoter price, notary fees offered Non-contractual illustrations - Suggestions for layouts. Information on the risks to which this property is exposed is available on the Géorisques website: www.georisques.gouv.fr.

Energy expenditure

A B C D E F G high performance housing extremely inefficient housing Not required
A B C D E F G very high CO2 emissions low CO2 emissions Not required

Location of property

Contactez-nous

Contact an advisor by phone or
leave us a message by filling the form

02 99 32 43 86

Financial simulation
Your loan amount Loan amount
Your loan period Loan period
Interest rate before negotiation Interest rates
Loan amount
Loan period
Monthly payments

 Reload Contact us

Biens similaires

A B C D E F G high performance housing extremely inefficient housing Not required
A B C D E F G very high CO2 emissions low CO2 emissions Not required
Affichage :