Skip to main content

Buy Apartment 3 room(s) 63 m2

280 000 €
Saint-Erblon
(
35230
)
6029-27

By registering on Cabinet Moraine website, you will benefit from numerous additional services. Registration is completely free and does not commit you to anything.

Log in
3
Rooms
2
Bedrooms
63m²
Surface

Property description

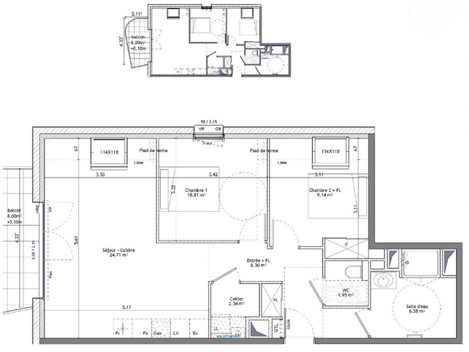
Saint Erblon - 3-room apartment 63.63sqm South West - 2nd floor - 8sqm balcony - elevator - garage Ideally located, in a residence with the latest RE2020 standards in a peaceful and green environment, close to amenities: local shops, supermarkets, schools, nurseries, and sports facilities, public transport ... 3-room apartment of 63.63sqm facing South West, on the second floor with elevator, floor area: 67.89sqm - comprising: an entrance with cupboard, a living room with kitchen giving access to an 8sqm balcony, two bedrooms, shower room, separate toilet, storeroom. Garage in the secure basement. Non-contractual photos - Suggestions for developments Promoter price - reduced notary fees - Information on the risks to which this property is exposed is available on the Géorisques website: www.georisques.gouv.fr

Condominiums of 19 units (No proceedings in progress). Annual expenses : 902 euros.

Energy expenditure

A B C D E F G high performance housing extremely inefficient housing Not required
A B C D E F G very high CO2 emissions low CO2 emissions Not required

Location of property

Contactez-nous

Contact an advisor by phone or
leave us a message by filling the form

02 99 32 43 86

Financial simulation
Your loan amount Loan amount
Your loan period Loan period
Interest rate before negotiation Interest rates
Loan amount
Loan period
Monthly payments

 Reload Contact us

Biens similaires

A B C D E F G high performance housing extremely inefficient housing Not required
A B C D E F G very high CO2 emissions low CO2 emissions Not required
Affichage :