Skip to main content

Buy Apartment 2 room(s) 40 m2

220 000 €
Rennes
(
35000
)
6283-D45

By registering on Cabinet Moraine website, you will benefit from numerous additional services. Registration is completely free and does not commit you to anything.

Log in
2
Rooms
1
Bedroom
40m²
Surface

Property description

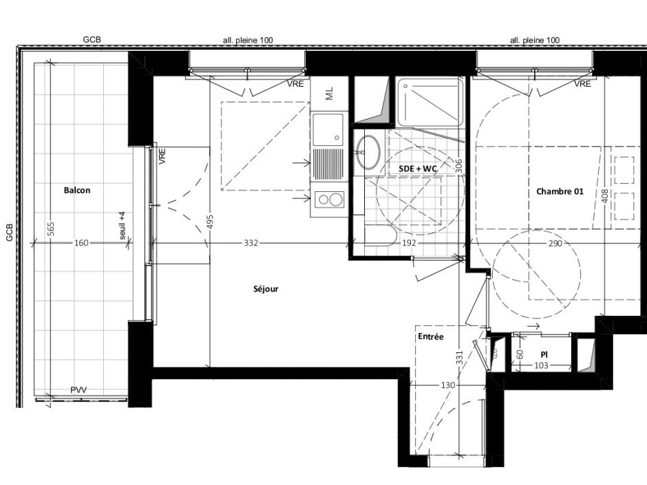
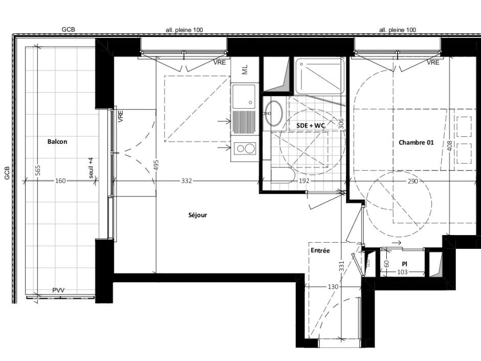
RENNES NORTH ST MARTIN - 1-Bedroom Apartment 40.52sqm Southwest Facing - 9.04sqm Balcony - 4th Floor - Underground Parking. Just steps from the Prairies Saint-Martin park and the canal, in a leafy residential area with excellent transport links (bus, bike paths, quick access to the city center and major roads), discover this 1-bedroom apartment of 41.39sqm facing southwest. Located on the 4th floor of a modern building with an elevator, it comprises an entrance hall with a closet, a pleasant living room with an open-plan kitchen, extending onto a 9.04sqm balcony, a bedroom with a closet, and a shower room with a toilet. Secure underground parking. High-quality finishes and optimal comfort. Compliant with the RE2020 environmental regulations, the building guarantees energy efficiency and sustainable living. Developer price - reduced notary fees. Information regarding the risks associated with this property is available on the Géorisques website: www.georisques.gouv.fr
Condominiums of 55 units (Ongoing procedure). Annual expenses : 590 euros.

Energy expenditure

A B C D E F G high performance housing extremely inefficient housing Not required
A B C D E F G very high CO2 emissions low CO2 emissions Not required

Location of property

Contactez-nous

Contact an advisor by phone or
leave us a message by filling the form

02 99 32 43 86

Financial simulation
Your loan amount Loan amount
Your loan period Loan period
Interest rate before negotiation Interest rates
Loan amount
Loan period
Monthly payments

 Reload Contact us

Biens similaires

A B C D E F G high performance housing extremely inefficient housing Not required
A B C D E F G very high CO2 emissions low CO2 emissions Not required
Affichage :