Skip to main content

Buy Apartment 3 room(s) 61 m2

255 000 €
Pleurtuit
(
35730
)
61059-205

By registering on Cabinet Moraine website, you will benefit from numerous additional services. Registration is completely free and does not commit you to anything.

Log in
3
Rooms
2
Bedrooms
61m²
Surface

Property description

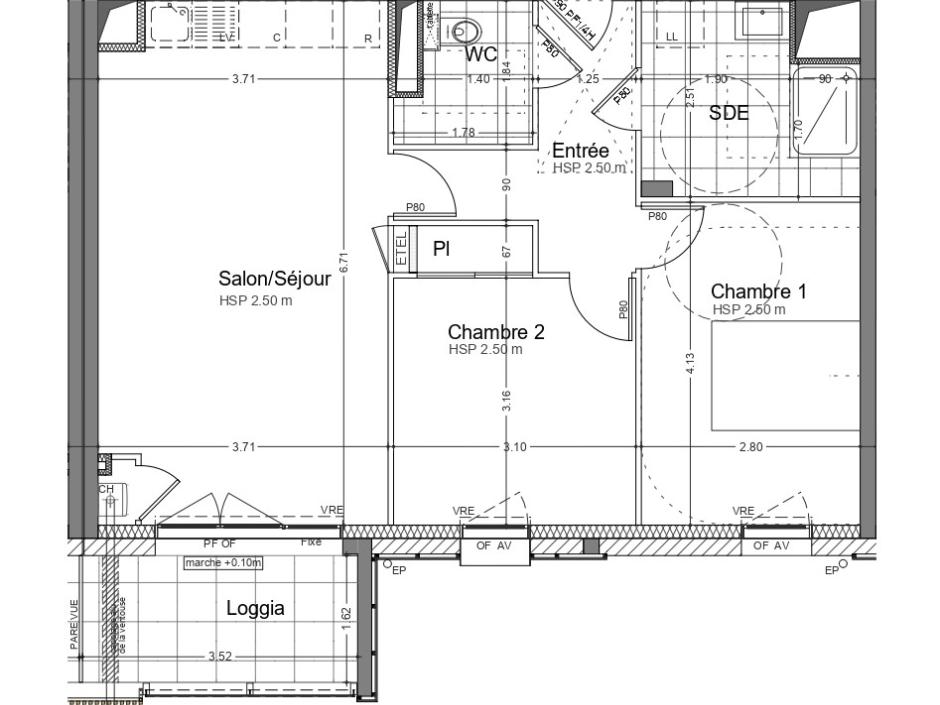
PLEURTUIT - 3-room apartment of 61.51sqm West - 2nd floor - elevator - parking Ideally located in a residential area of Pleurtuit, close to the town center, shops, amenities and transport, this elegant 61.51 sqm apartment is on the 2nd floor of a contemporary residence with elevator. Bathed in light thanks to its West exposure, it consists of an entrance hall, a bright living room with open kitchen, giving access to a pleasant 5.71 sqm loggia. The sleeping area includes two bedrooms, a bathroom and separate toilets. Two private parking spaces complete this property. Promoter price - reduced notary fees - Information on the risks to which this property is exposed is available on the Géorisques website: www.georisques.gouv.fr. Non-contractual photos - Suggestions for layouts
Condominiums of 37 units (No proceedings in progress). Annual expenses : 878 euros.

Energy expenditure

A B C D E F G high performance housing extremely inefficient housing Not required
A B C D E F G very high CO2 emissions low CO2 emissions Not required

Location of property

Contactez-nous

Contact an advisor by phone or
leave us a message by filling the form

02 99 32 43 86

Financial simulation
Your loan amount Loan amount
Your loan period Loan period
Interest rate before negotiation Interest rates
Loan amount
Loan period
Monthly payments

 Reload Contact us

Biens similaires

A B C D E F G high performance housing extremely inefficient housing Not required
A B C D E F G very high CO2 emissions low CO2 emissions Not required
Affichage :