Skip to main content

Buy Apartment 2 room(s) 48 m2

201 000 €
Orgères
(
35230
)
62432-15

By registering on Cabinet Moraine website, you will benefit from numerous additional services. Registration is completely free and does not commit you to anything.

Log in
2
Rooms
1
Bedroom
48m²
Surface

Property description

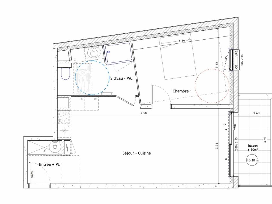
ORGÈRES - 1-Bedroom Apartment, 48.66 sq m, Southeast Facing - 2nd Floor - Elevator - 6.30 sq m Balcony - Secure Underground Parking. Located south of Rennes Métropole, in the town of Orgères, discover this 1-bedroom apartment of 48.66 sq m for sale, on the 1st floor of an elegant residence with elevator and secure access. Ideally situated, the residence benefits from a prime location, in close proximity to shops, services, and amenities, offering a practical and comfortable living environment. Facing southeast, this bright apartment comprises an entrance hall with a closet, a living room with an open-plan kitchen extending onto a 6.30 sq m balcony, a comfortable bedroom, and a shower room with WC. A secure underground parking space completes this property. This apartment in Orgères presents an ideal opportunity for a first-time buyer, a rental investment, or simply to enjoy a pleasant living environment just minutes from Rennes. Developer price - Reduced notary fees - RT2020 compliant. Information on the risks to which this property is exposed is available on the Géorisques website: www.georisques.gouv.fr
Condominiums of 17 units. Annual expenses : 691 euros.

Energy expenditure

A B C D E F G high performance housing extremely inefficient housing Not required
A B C D E F G very high CO2 emissions low CO2 emissions Not required

Location of property

Contactez-nous

Contact an advisor by phone or
leave us a message by filling the form

02 99 32 43 86

Financial simulation
Your loan amount Loan amount
Your loan period Loan period
Interest rate before negotiation Interest rates
Loan amount
Loan period
Monthly payments

 Reload Contact us

Biens similaires

A B C D E F G high performance housing extremely inefficient housing Not required
A B C D E F G very high CO2 emissions low CO2 emissions Not required
Affichage :