Skip to main content

Buy Apartment 4 room(s) 88 m2

326 000 €
Chantepie
(
35135
)
6190-C-01

By registering on Cabinet Moraine website, you will benefit from numerous additional services. Registration is completely free and does not commit you to anything.

Log in
4
Rooms
3
Bedrooms
1
Bathroom
88m²
Surface

Property description

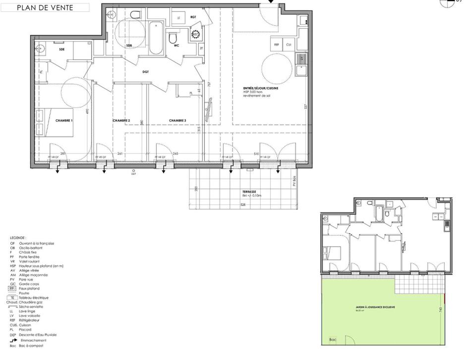
CHANTEPIE - 4-room apartment of 88.35sqm West - terrace and garden 86.02sqm - secure underground parking and cellar 1.3km from the center of Chantepie, shops, market, amenities, nearby services, parks and gardens, ... in a green and residential environment, 4-room apartment facing West located on the ground floor comprising: a living room with open kitchen, access to the terrace of 9.22sqm and the garden of 86.02sqm facing West, 3 bedrooms, bathroom, shower room, separate toilet, storage. Private secure underground parking. Promoter price - reduced notary fees. Information on the risks to which this property is exposed is available on the Géorisques website: www.georisques.gouv.fr
Condominiums of 42 units (No proceedings in progress). Annual expenses : 1267 euros.

Energy expenditure

A B C D E F G high performance housing extremely inefficient housing Not required
A B C D E F G very high CO2 emissions low CO2 emissions Not required

Location of property

Contactez-nous

Contact an advisor by phone or
leave us a message by filling the form

02 99 32 43 86

Financial simulation
Your loan amount Loan amount
Your loan period Loan period
Interest rate before negotiation Interest rates
Loan amount
Loan period
Monthly payments

 Reload Contact us

Biens similaires

A B C D E F G high performance housing extremely inefficient housing Not required
A B C D E F G very high CO2 emissions low CO2 emissions Not required
Affichage :