Skip to main content

Buy Apartment 2 room(s) 40 m2

211 500 €
Betton
(
35830
)
6232-13

By registering on Cabinet Moraine website, you will benefit from numerous additional services. Registration is completely free and does not commit you to anything.

Log in
2
Rooms
1
Bedroom
40m²
Surface

Property description

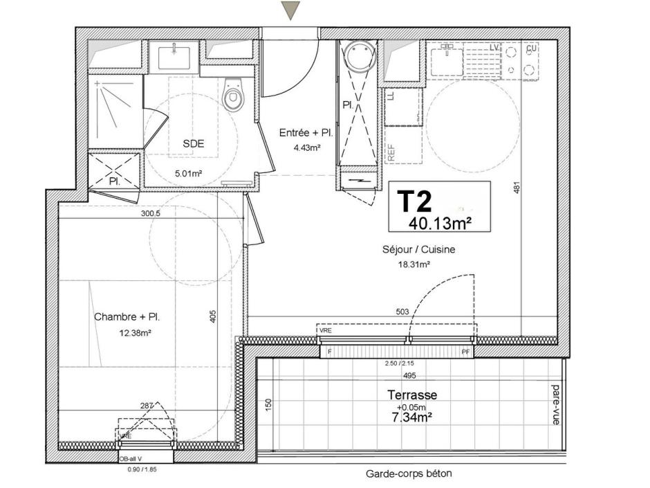
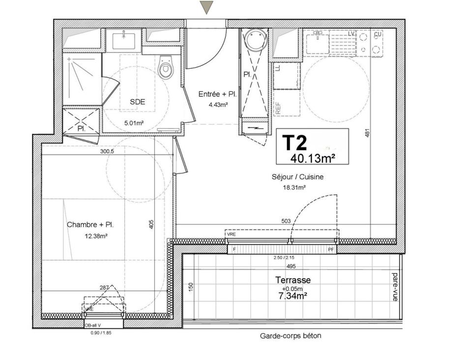
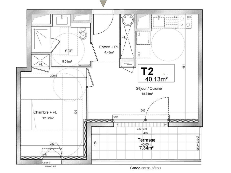
BETTON - 2-room apartment of 40.13sqm facing south - 1st floor - elevator - 7.45sqm terrace - secure underground parking. Just steps from shops, the train station, the canal banks, and only minutes from the market and schools, in a contemporary residence built to RT2020 standards. This 2-room apartment of 40.13sqm on the 1st floor with elevator comprises: an entrance hall with a closet, a living room with an open-plan kitchen opening onto a 7.45sqm terrace, a bedroom with a closet, and a shower room with WC. A secure underground parking space completes this property. Ideal for a first-time buyer, as a primary residence or rental investment: an opportunity not to be missed. Developer price - reduced notary fees. Information on the risks to which this property is exposed is available on the Géorisques website: www.georisques.gouv.fr.
Condominiums of 30 units (No proceedings in progress). Annual expenses : 576 euros.

Energy expenditure

A B C D E F G high performance housing extremely inefficient housing Not required
A B C D E F G very high CO2 emissions low CO2 emissions Not required

Location of property

Contactez-nous

Contact an advisor by phone or
leave us a message by filling the form

02 99 32 43 86

Financial simulation
Your loan amount Loan amount
Your loan period Loan period
Interest rate before negotiation Interest rates
Loan amount
Loan period
Monthly payments

 Reload Contact us

Biens similaires

A B C D E F G high performance housing extremely inefficient housing Not required
A B C D E F G very high CO2 emissions low CO2 emissions Not required
Affichage :