Skip to main content

Buy Apartment 2 room(s) 41 m2

197 000 €
Chantepie
(
35135
)
6170-3203

By registering on Cabinet Moraine website, you will benefit from numerous additional services. Registration is completely free and does not commit you to anything.

Log in
2
Rooms
1
Bedroom
41m²
Surface

Property description

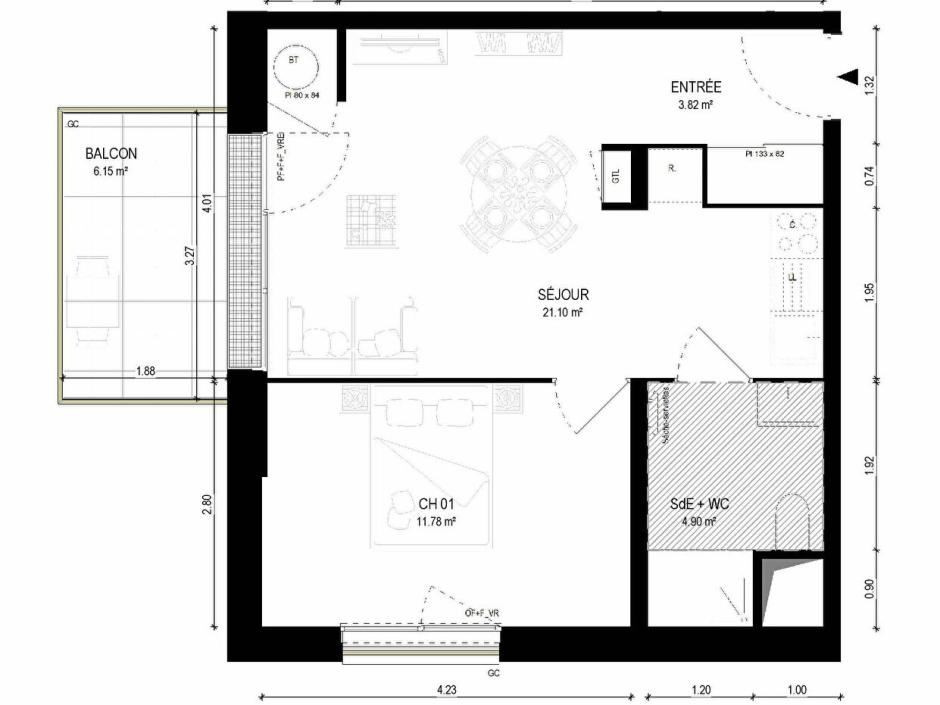
Chantepie - 2-room apartment of 41.59sqm West - balcony of 6.15sqm - 1st floor - elevator - private parking in secure basement. 1.5 km from the center of Chantepie and only a few minutes from the city center of Rennes with the future trambus, in a modern residence with the latest RT2020 standards, close to shops, amenities and transport, located on the 1st floor with elevator, 2-room apartment of 41.59sqm comprising: an entrance with closet, living room with open kitchen, access to a balcony of 6.15sqm, a bedroom, a bathroom with toilet. Secure underground parking. Promoter price - Reduced notary fees - Exemption from property tax for 2 years - Low energy consumption housing - Use of bio-sourced materials - Comfort. Dpe A. Promoter price - reduced notary fees - RT2020 standards. Information on the risks to which this property is exposed is available on the Géorisques website: www.georisques.gouv.fr. Non-contractual photos - Development suggestions
Condominiums of 38 units (No proceedings in progress). Annual expenses : 648 euros.

Energy expenditure

A B C D E F G high performance housing extremely inefficient housing Not required
A B C D E F G very high CO2 emissions low CO2 emissions Not required

Location of property

Contactez-nous

Contact an advisor by phone or
leave us a message by filling the form

02 99 32 43 86

Financial simulation
Your loan amount Loan amount
Your loan period Loan period
Interest rate before negotiation Interest rates
Loan amount
Loan period
Monthly payments

 Reload Contact us

Biens similaires

A B C D E F G high performance housing extremely inefficient housing Not required
A B C D E F G very high CO2 emissions low CO2 emissions Not required
Affichage :