Skip to main content

Buy Apartment 2 room(s) 43 m2

209 000 €
Vitré
(
35500
)
60789-B401

By registering on Cabinet Moraine website, you will benefit from numerous additional services. Registration is completely free and does not commit you to anything.

Log in
2
Rooms
1
Bedroom
43m²
Surface

Property description

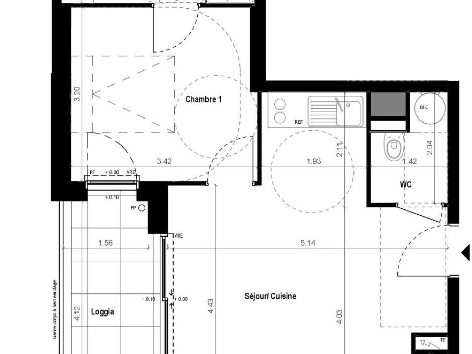
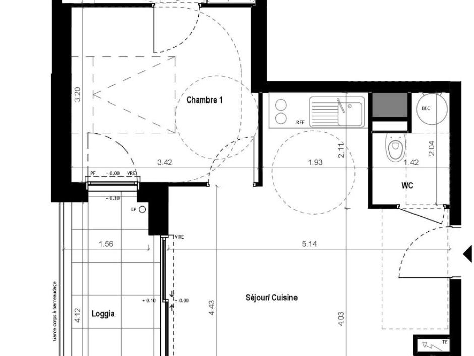
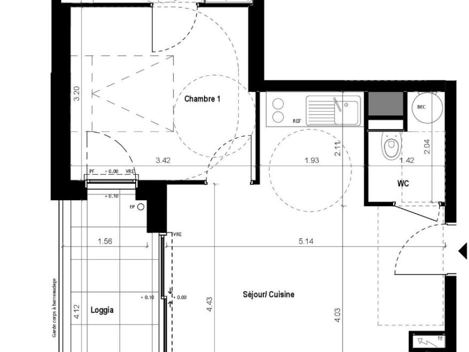
VITRÉ - 2-room apartment of 43.23sqm West - 4th floor - elevator - 6.41sqm loggia - secure underground parking. Ideally located in the heart of the city, close to shops, amenities and transport, this elegant 2-room apartment facing west is located on the 4th floor of a contemporary residence with high-quality fittings, offering a privileged living environment. With a surface area of 43.23 sqm, it consists of a bright living room with open kitchen, extended by a pleasant 6.41 sqm loggia. A bedroom, a shower room and separate toilet complete this property. Secure underground parking is included. Promoter price - Reduced notary fees. Information on the risks to which this property is exposed is available on the Géorisques website: www.georisques.gouv.fr. Non-contractual photos - Suggestions for developments.
Condominiums of 65 units (No proceedings in progress). Annual expenses : 619 euros.

Energy expenditure

A B C D E F G high performance housing extremely inefficient housing Not required
A B C D E F G very high CO2 emissions low CO2 emissions Not required

Location of property

Contactez-nous

Contact an advisor by phone or
leave us a message by filling the form

02 99 32 43 86

Financial simulation
Your loan amount Loan amount
Your loan period Loan period
Interest rate before negotiation Interest rates
Loan amount
Loan period
Monthly payments

 Reload Contact us

Biens similaires

A B C D E F G high performance housing extremely inefficient housing Not required
A B C D E F G very high CO2 emissions low CO2 emissions Not required
Affichage :