Buy Apartment 4 room(s) 88 m2
By registering on Cabinet Moraine website, you will benefit from numerous additional services. Registration is completely free and does not commit you to anything.
Log inProperty description
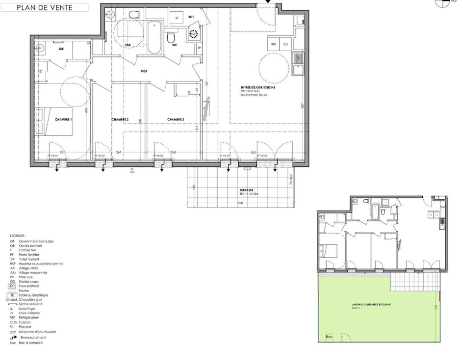
CHANTEPIE - 4-room apartment of 88.35sqm West - terrace and garden 86.02sqm - secure underground parking and cellar 1.3km from the center of Chantepie, shops, market, amenities, nearby services, parks and gardens, ... in a green and residential environment, 4-room apartment facing West located on the ground floor comprising: a living room with open kitchen, access to the terrace of 9.22sqm and the garden of 86.02sqm facing West, 3 bedrooms, bathroom, shower room, separate toilet, storage. Private secure underground parking. Promoter price - reduced notary fees. Information on the risks to which this property is exposed is available on the Géorisques website: www.georisques.gouv.fr
Condominiums of 42 units (No proceedings in progress). Annual expenses : 1267 euros.