Aller au contenu principal

Achat Maison 4 pièce(s) 92 m2

409 000 €
Rennes
(
35000
)
62471-M09

En vous inscrivant sur le site du cabinet Moraine vous bénéficierez de nombreux services complémentaires. L'inscription est totalement gratuite et ne vous engage rien.

Se connecter
4
Rooms
3
Chambre(s)
1
Salle(s) de bain
92m²
Surface

Présentation du bien

RENNES NORD - MAISON 4 PIÈCES SUD 92.10M² - TERRAIN 144M² - STATIONNEMENTS
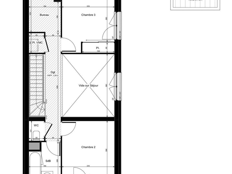
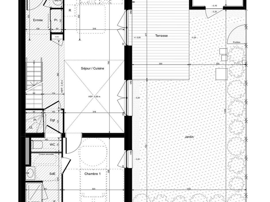
Idéalement implantée au nord de Rennes, cette maison profite d'une situation privilégiée alliant accessibilité et qualité de vie. Elle offre un accès rapide à la voie rapide et au centre-ville, tout en bénéficiant d'un environnement pratique et recherché, à proximité immédiate des commodités, des commerces et des transports en commun. Cette maison de 4 pièces, développant une surface habitable de 92,10 m², a été conçue selon les principes de l'architecture bioclimatique, privilégiant confort et performance énergétique. Sa construction en ossature bois, son triple vitrage et son orientation plein sud garantissent une excellente luminosité ainsi que de réelles économies d'énergie. Le rez-de-chaussée s'ouvre sur une entrée avec placard, menant à un séjour-salon avec cuisine ouverte baigné de lumière. L'ensemble donne accès à une terrasse et à un jardin privatif d'une superficie de 53,10 m². Ce niveau comprend également un dégagement, une chambre offrant une vue agréable sur le jardin avec salle d'eau attenante, ainsi qu'un WC indépendant. A l'étage, un dégagement dessert un espace bureau, deux chambres, une salle de bains et un second WC indépendant.
Les prestations sont complétées par un abri de jardin ainsi que deux places de stationnement privatives. Prix promoteur - frais de notaire réduits
Les informations sur les risques auxquels ce bien est exposé sont disponibles sur le site Géorisques : www.georisques.gouv.fr
Copropriété de 22 lots - dont 22 lots habitation.

Dépenses énergétiques

A B C D E F G logement très performant logement extrêmement peu performant Non requis
A B C D E F G emissions de CO₂ très importantes peu d'émission de CO₂ Non requis

Localisation du bien

Contactez-nous

Contactez un conseiller par téléphone ou
laissez-nous un message via notre formulaire.

02 99 32 43 86

Simulation financière
Montant de votre prêt Montant du prêt
Durée de votre prêt Durée du prêt
Taux d'intérêt avant négociation Taux d'intérêts
Montant du prêt
Durée du prêt
Mensualités

 Recharger Contactez-nous

Biens similaires

A B C D E F G logement très performant logement extrêmement peu performant Non requis
A B C D E F G emissions de CO₂ très importantes peu d'émission de CO₂ Non requis
Affichage :