Achat Appartement 3 pièce(s) 62 m2
En vous inscrivant sur le site du cabinet Moraine vous bénéficierez de nombreux services complémentaires. L'inscription est totalement gratuite et ne vous engage rien.
Se connecterPrésentation du bien
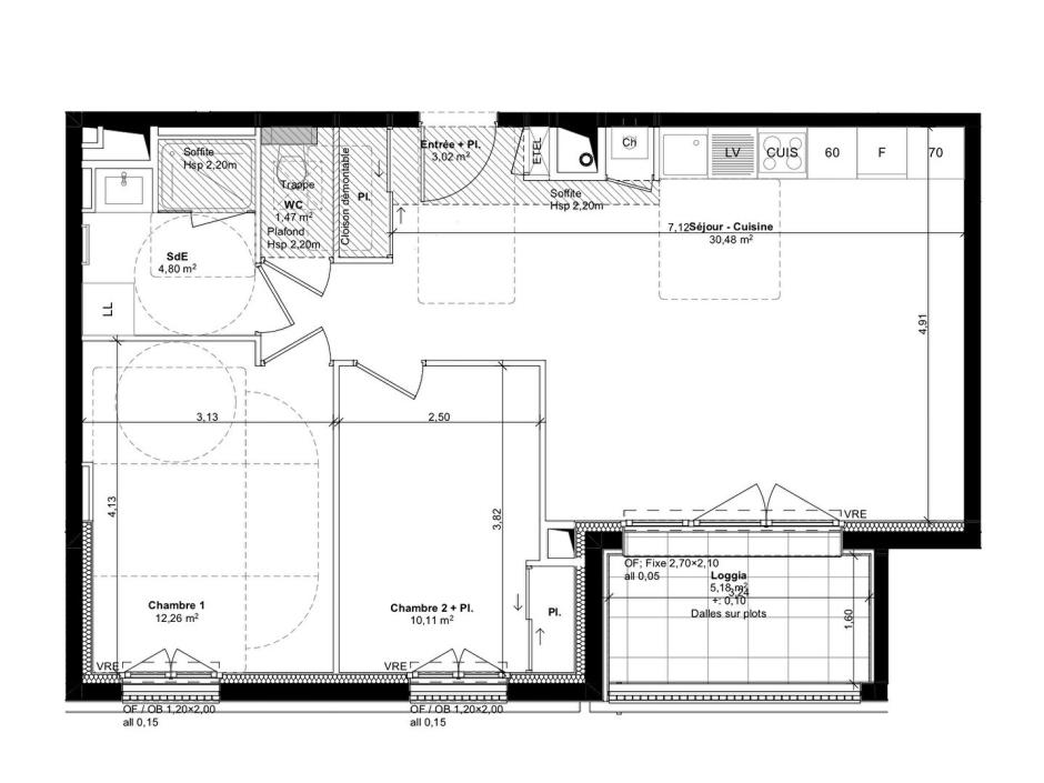
Saint Malo - 3 pièces 62.14m² Sud- loggia de 5.18m² - 1er étage - ascenseur - stationnements en sous-sol sécurisés
A 900 mètres des plages, des commodités et des commerces, dans un quartier résidentiel au calme, au sein d' une résidence de standing aux dernières normes, alliant confort moderne et performance énergétique, au 1er étage avec ascenseur, cet appartement de 3 pièces de 62.14 m² au Sud, se compose d' une entrée avec placard, d'un séjour salon avec cuisine ouverte donnant accès à une loggia de 5.18m², deux chambres, une salle d'eau, WC indépendant. Deux stationnements en sous-sol sécurisés complètent ce bien. Prestations de qualité : Performances énergétiques RT2020 - Accès sécurisé par badge et visiophone.. Prix promoteur - frais de notaire réduits. Les informations sur les risques auxquels ce bien est exposé sont disponibles sur le site Géorisques : www.georisques.gouv.fr.
Copropriété de 57 lots - dont 17 lots habitation.
Charges annuelles : 892 euros.
Dépenses énergétiques
Localisation du bien
Contactez-nous
Contactez un conseiller par téléphone ou
laissez-nous un message via notre formulaire.