Aller au contenu principal

Achat Appartement 3 pièce(s) 65 m2

262 000 €
Saint-Erblon
(
35230
)
6042-03

En vous inscrivant sur le site du cabinet Moraine vous bénéficierez de nombreux services complémentaires. L'inscription est totalement gratuite et ne vous engage rien.

Se connecter
3
Rooms
2
Chambre(s)
65m²
Surface

Présentation du bien

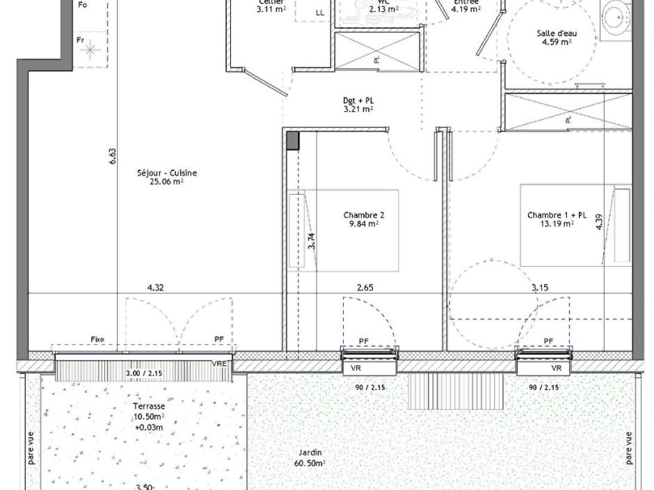
Saint Erblon - appartement 3 pièces 65.32m² Sud - rez-de-chaussée - terrasse 10.50m² - jardin 60.50m² - stationnement en sous-sol sécurisé.
Nichée au sein d'une résidence contemporaine respectant les normes RE2020, cet appartement offre un cadre de vie serein et verdoyant, tout en restant proche des commodités et des transports. D'une superficie de 65,32 m², cet appartement en rez-de-chaussée bénéficie d'une orientation plein Sud, baigné de lumière naturelle. Il s'ouvre sur une entrée avec placard, menant à un vaste séjour lumineux avec cuisine ouverte, prolongé par une terrasse de 10,50 m² et un jardin privatif de 60,50 m². L'espace nuit se compose de deux chambres, dont l'une dotée d'un placard, ainsi que d'une salle d'eau, de WC séparés et d'un cellier. Un stationnement sécurisé en sous-sol vient compléter ce bien.- Les informations sur les risques auxquels ce bien est exposé sont disponibles sur le site Géorisques : www.georisques.gouv.fr. Photos non contractuelles - Suggestions d'aménagements
Copropriété de 19 lots - dont 19 lots habitation. (Pas de procédure en cours).

Charges annuelles : 950 euros.

Dépenses énergétiques

A B C D E F G logement très performant logement extrêmement peu performant Non requis
A B C D E F G emissions de CO₂ très importantes peu d'émission de CO₂ Non requis

Localisation du bien

Contactez-nous

Contactez un conseiller par téléphone ou
laissez-nous un message via notre formulaire.

02 99 32 43 86

Simulation financière
Montant de votre prêt Montant du prêt
Durée de votre prêt Durée du prêt
Taux d'intérêt avant négociation Taux d'intérêts
Montant du prêt
Durée du prêt
Mensualités

 Recharger Contactez-nous

Biens similaires

A B C D E F G logement très performant logement extrêmement peu performant Non requis
A B C D E F G emissions de CO₂ très importantes peu d'émission de CO₂ Non requis
Affichage :