Aller au contenu principal

Achat Appartement 3 pièce(s) 63 m2

265 000 €
Saint-Erblon
(
35230
)
6042-27

En vous inscrivant sur le site du cabinet Moraine vous bénéficierez de nombreux services complémentaires. L'inscription est totalement gratuite et ne vous engage rien.

Se connecter
3
Rooms
2
Chambre(s)
63m²
Surface

Présentation du bien

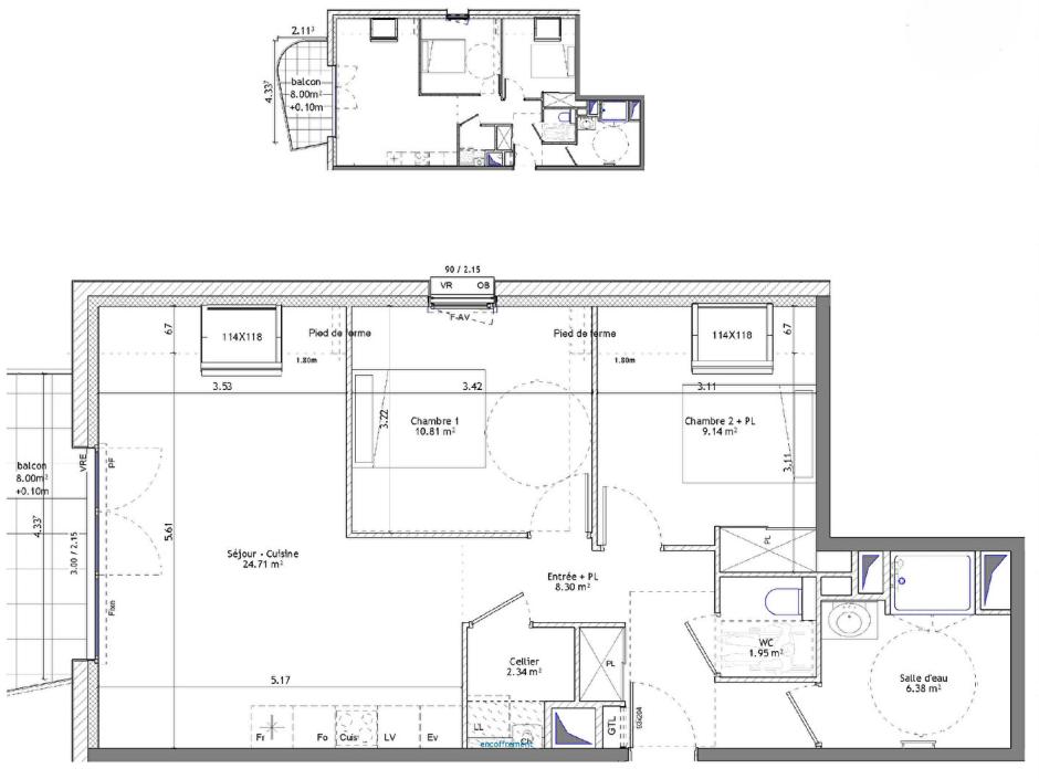
Saint Erblon - appartement 3 pièces 63.63m² Sud Ouest - 2ème étage - balcon 8m² - ascenseur - garage
Idéalement situé, dans une résidence aux dernières normes RE2020 au sein d'un environnement paisible et verdoyant, à proximité des commodités : commerces locaux, des supermarchés, des écoles, des crèches, et des équipements sportifs, des transports en commun ... appartement 3 pièces de 63.63m² exposé Sud-Ouest, au deuxième étage avec ascenseur, surface au sol : 67.89m² - comprenant : une entrée avec placard, un séjour salon avec cuisine donnant accès à un balcon de 8 m², deux chambres, salle d'eau, wc indépendant, cellier. Garage en sous-sol sécurisé. Photos non contractuelles - Suggestions d'aménagements
Prix promoteur - frais de notaire réduits - Les informations sur les risques auxquels ce bien est exposé sont disponibles sur le site Géorisques : www.georisques.gouv.fr

Copropriété de 19 lots - dont 19 lots habitation. (Pas de procédure en cours).

Charges annuelles : 902 euros.

Dépenses énergétiques

A B C D E F G logement très performant logement extrêmement peu performant Non requis
A B C D E F G emissions de CO₂ très importantes peu d'émission de CO₂ Non requis

Localisation du bien

Contactez-nous

Contactez un conseiller par téléphone ou
laissez-nous un message via notre formulaire.

02 99 32 43 86

Simulation financière
Montant de votre prêt Montant du prêt
Durée de votre prêt Durée du prêt
Taux d'intérêt avant négociation Taux d'intérêts
Montant du prêt
Durée du prêt
Mensualités

 Recharger Contactez-nous

Biens similaires

A B C D E F G logement très performant logement extrêmement peu performant Non requis
A B C D E F G emissions de CO₂ très importantes peu d'émission de CO₂ Non requis
Affichage :