Aller au contenu principal

Achat Appartement 4 pièce(s) 81 m2

407 000 €
Nantes
(
44000
)
54463-B402

En vous inscrivant sur le site du cabinet Moraine vous bénéficierez de nombreux services complémentaires. L'inscription est totalement gratuite et ne vous engage rien.

Se connecter
4
Rooms
3
Chambre(s)
1
Salle(s) de bain
81m²
Surface

Présentation du bien

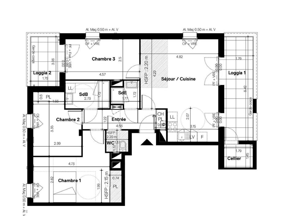
Nantes - Entre Erdre et La Loire - quartier Rond Point de Paris - Appartement 4 pièces 81.67m² Sud Est - 4ème étage - ascenseur - loggias 16.92m² - stationnement sécurisé.
Idéalement situé entre la Loire et l'Erdre, dans un quartier dynamique et authentique, cet appartement bénéficie d'un cadre de vie exceptionnel alliant verdure, commodités et accessibilité. A quelques pas, profitez de nombreux restaurants, services, écoles, piscine et espaces verts, ainsi que d'un accès rapide au centre-ville grâce au tramway, bus, chronobus ou encore à vélo. Nichée au 4? étage d'une résidence à l'architecture soignée avec ascenseur, cette belle adresse dévoile un appartement traversant de 81,67 m² exposé sud. Son agencement fonctionnel comprend une entrée avec placard, une pièce de vie lumineuse avec cuisine ouverte, s'ouvrant sur une loggia de 11,46 m² avec cellier. L'espace nuit propose trois chambres, dont deux avec placard et une avec loggia privative de 5,46 m², une salle d'eau, une salle de bains et des toilettes indépendantes. Un stationnement sécurisé en sous-sol complète ce bien, idéal pour conjuguer confort, modernité et douceur de vivre.
Prix promoteur - frais de notaire réduits - Les informations sur les risques auxquels ce bien est exposé sont disponibles sur le site Géorisques : www.georisques.gouv.fr. Photos non contractuelles - Suggestions d'aménagements
Copropriété de 39 lots - dont 39 lots habitation.

Charges annuelles : 1166 euros.

Dépenses énergétiques

A B C D E F G logement très performant logement extrêmement peu performant Non requis
A B C D E F G emissions de CO₂ très importantes peu d'émission de CO₂ Non requis

Localisation du bien

Contactez-nous

Contactez un conseiller par téléphone ou
laissez-nous un message via notre formulaire.

02 99 32 43 86

Simulation financière
Montant de votre prêt Montant du prêt
Durée de votre prêt Durée du prêt
Taux d'intérêt avant négociation Taux d'intérêts
Montant du prêt
Durée du prêt
Mensualités

 Recharger Contactez-nous

Biens similaires

A B C D E F G logement très performant logement extrêmement peu performant Non requis
A B C D E F G emissions de CO₂ très importantes peu d'émission de CO₂ Non requis
Affichage :