Aller au contenu principal

Achat Appartement 5 pièce(s) 99 m2

486 000 €
Saint-Malo
(
35400
)
68293-C101

En vous inscrivant sur le site du cabinet Moraine vous bénéficierez de nombreux services complémentaires. L'inscription est totalement gratuite et ne vous engage rien.

Se connecter
5
Rooms
4
Chambre(s)
1
Salle(s) de bain
99m²
Surface

Présentation du bien

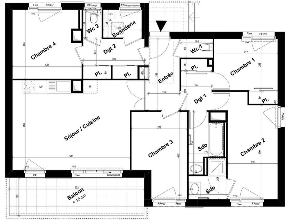
SAINT MALO - Appartement 5 pièces de 99m² Sud Ouest - 1er étage - balcon 12.77m² - garage et stationnement.
Située à SAINT MALO, proche des commodités et services, dans une nouvelle résidence de standing, aux prestations de qualité et confort des dernières normes RT2012 bénéficiant d'une bonne localisation géographique, situé au 1er étage, appartement de 5 pièces de 99.40m², exposé Sud Ouest, comprenant : une entrée avec placard, séjour salon ouvrant sur un balcon de 12.77m², cuisine ouverte, 4 chambres, salle de bains, salle d'eau, wcs, placards, buanderie, garage et stationnement privatif.
Prix promoteur - frais de notaire réduits - dernières normes RT2012
www.immobilier-moraine.fr 02 99 32 43 86
Copropriété de 48 lots (Pas de procédure en cours).

Charges annuelles : 1425 euros.

Dépenses énergétiques

A B C D E F G logement très performant logement extrêmement peu performant Non communiqué
A B C D E F G emissions de CO₂ très importantes peu d'émission de CO₂ Non communiqué

Localisation du bien

Contactez-nous

Contactez un conseiller par téléphone ou
laissez-nous un message via notre formulaire.

02 99 32 43 86

Simulation financière
Montant de votre prêt Montant du prêt
Durée de votre prêt Durée du prêt
Taux d'intérêt avant négociation Taux d'intérêts
Montant du prêt
Durée du prêt
Mensualités

 Recharger Contactez-nous

Biens similaires

A B C D E F G logement très performant logement extrêmement peu performant Non communiqué
A B C D E F G emissions de CO₂ très importantes peu d'émission de CO₂ Non communiqué
Affichage :