Skip to main content

Buy Apartment 2 room(s) 49 m2

219 000 €
Vitré
(
35500
)
60789-B305

By registering on Cabinet Moraine website, you will benefit from numerous additional services. Registration is completely free and does not commit you to anything.

Log in
2
Rooms
1
Bedroom
49m²
Surface

Property description

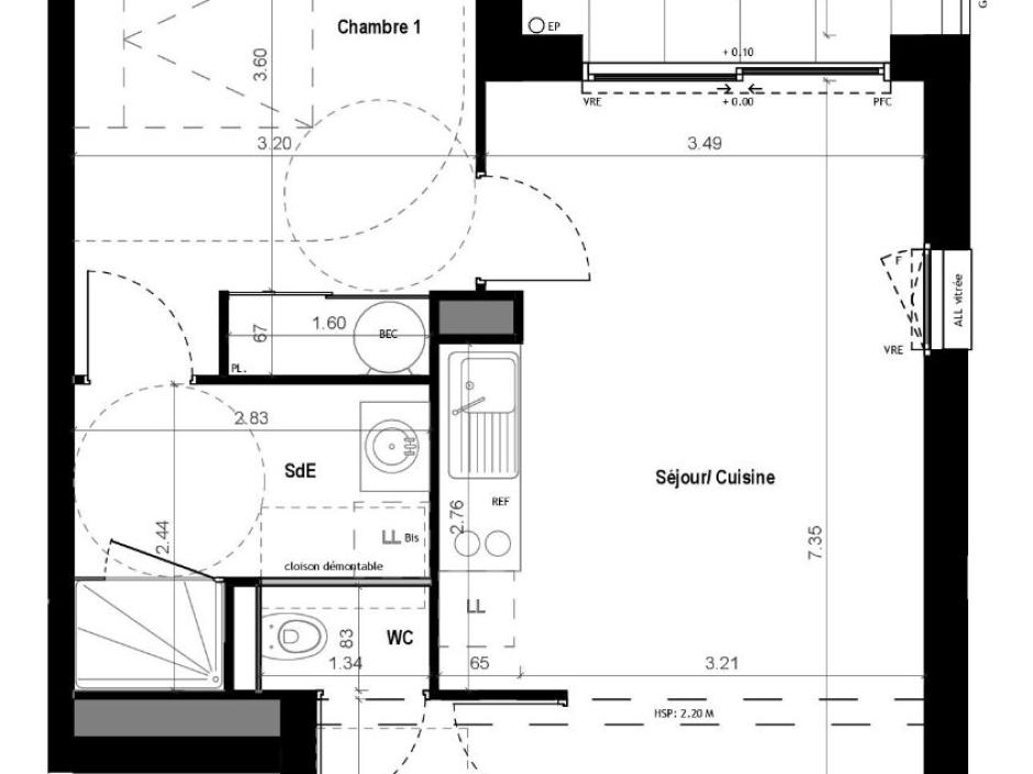
VITRÉ - 2-room apartment of 49.22sqm - 3rd floor - elevator - 6.37sqm loggia - secure underground parking. Ideally located in the city center, close to shops, amenities, and transport, this 2-room apartment is located on the 3rd floor of a contemporary residence with high-quality fittings. With a surface area of 49.22 sqm, it consists of an entrance hall with closet, a living room with open kitchen, extended by a 6.37sqm loggia. A bedroom, a bathroom, and a separate toilet complete this property. Secure underground parking is included. Promoter price - Reduced notary fees. Information on the risks to which this property is exposed is available on the Géorisques website: www.georisques.gouv.fr. Non-contractual photos - Development suggestions.
Condominiums of 65 units (No proceedings in progress). Annual expenses : 720 euros.

Energy expenditure

A B C D E F G high performance housing extremely inefficient housing Not required
A B C D E F G very high CO2 emissions low CO2 emissions Not required

Location of property

Contactez-nous

Contact an advisor by phone or
leave us a message by filling the form

02 99 32 43 86

Financial simulation
Your loan amount Loan amount
Your loan period Loan period
Interest rate before negotiation Interest rates
Loan amount
Loan period
Monthly payments

 Reload Contact us

Biens similaires

A B C D E F G high performance housing extremely inefficient housing Not required
A B C D E F G very high CO2 emissions low CO2 emissions Not required
Affichage :