Skip to main content

Buy Apartment 3 room(s) 58 m2

231 000 €
Vezin-le-Coquet
(
35132
)
6213-1001

By registering on Cabinet Moraine website, you will benefit from numerous additional services. Registration is completely free and does not commit you to anything.

Log in
3
Rooms
2
Bedrooms
58m²
Surface

Property description

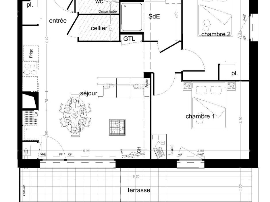
Vezin le Coquet - 2-bedroom apartment, 58.74 sq m, south-facing, ground floor, terrace, 15.92 sq m, secure private parking. Just 6 km from the center of Rennes, Vezin le Coquet benefits from an efficient transport network, thanks to the Star bus network and the REV (Rennes Express Vélo) cycle path. Ideally located in a green setting, in a quiet, contemporary residence, close to shops, schools, and amenities, this 2-bedroom ground-floor apartment comprises: an entrance hall with a built-in wardrobe, a living room with an open-plan kitchen opening onto a 15.92 sq m terrace, two bedrooms, a shower room, a separate WC, and a storage room. Secure underground parking and one private outdoor parking space are included. Developer - reduced notary fees - RE2020 compliant and Energy Performance Certificate (EPC) rated A, guaranteeing low energy consumption. Information on the risks to which this property is exposed is available on the Géorisques website: www.georisques.gouv.fr
Condominiums of 49 units. Annual expenses : 835 euros.

Energy expenditure

A B C D E F G high performance housing extremely inefficient housing Not required
A B C D E F G very high CO2 emissions low CO2 emissions Not required

Location of property

Contactez-nous

Contact an advisor by phone or
leave us a message by filling the form

02 99 32 43 86

Financial simulation
Your loan amount Loan amount
Your loan period Loan period
Interest rate before negotiation Interest rates
Loan amount
Loan period
Monthly payments

 Reload Contact us

Biens similaires

A B C D E F G high performance housing extremely inefficient housing Not required
A B C D E F G very high CO2 emissions low CO2 emissions Not required
Affichage :