Skip to main content

Buy Apartment 2 room(s) 44 m2

255 000 €
Saint-Jacques-de-la-Lande
(
35136
)
60451-A202

By registering on Cabinet Moraine website, you will benefit from numerous additional services. Registration is completely free and does not commit you to anything.

Log in
2
Rooms
1
Bedroom
44m²
Surface

Property description

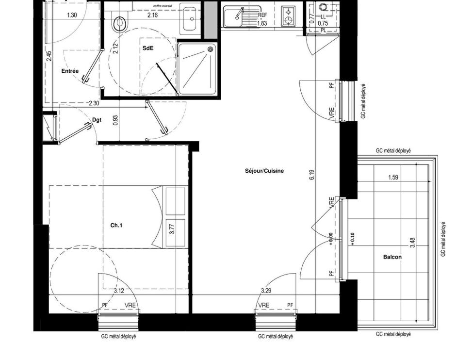
RENNES ST JACQUES / COURROUZE - 2-room apartment 44.04sqm South West - 2nd floor - elevator - balcony 5.53sqm - secure underground parking. Discover this charming 2-room apartment, offering a surface area of 44.04 sqm and a beautiful South-West exposure. Nestled on the 2nd floor of a contemporary residence with elevator, compliant with RT 2020 standards, it benefits from a privileged location with its immediate proximity to shops, schools, services and infrastructure, as well as excellent connectivity thanks to metro line B 500 meters away, bus lines and cycle paths. Bathed in light thanks to its South-West exposure, this apartment consists of an entrance hall, a living room with open kitchen opening onto a 5.53 sqm balcony, a bedroom and a bathroom with WC. Secure underground parking completes this property. Don't miss this ideal opportunity for an investment or a first acquisition, combining comfort, modernity and practicality. Promoter price - Reduced notary fees Information relating to the risks to which this property is exposed is available on the Géorisques website: www.georisques.gouv.fr. Non-contractual photos, suggestions for developments
Condominiums of 24 units (No proceedings in progress). Annual expenses : 633 euros.

Energy expenditure

A B C D E F G high performance housing extremely inefficient housing Not required
A B C D E F G very high CO2 emissions low CO2 emissions Not required

Location of property

Contactez-nous

Contact an advisor by phone or
leave us a message by filling the form

02 99 32 43 86

Financial simulation
Your loan amount Loan amount
Your loan period Loan period
Interest rate before negotiation Interest rates
Loan amount
Loan period
Monthly payments

 Reload Contact us

Biens similaires

A B C D E F G high performance housing extremely inefficient housing Not required
A B C D E F G very high CO2 emissions low CO2 emissions Not required
Affichage :