Skip to main content

Buy Apartment 2 room(s) 44 m2

259 000 €
Rennes
(
35000
)
60453-A302

By registering on Cabinet Moraine website, you will benefit from numerous additional services. Registration is completely free and does not commit you to anything.

Log in
2
Rooms
1
Bedroom
44m²
Surface

Property description

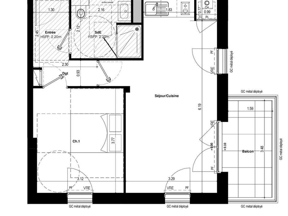
COURROUZE / ST JACQUES - 1-Bedroom Apartment, 44.04 sq m, Southwest Facing - 3rd Floor - Elevator - 5.53 sq m Balcony - Secure Underground Parking. Discover this charming 1-bedroom apartment, offering 44.04 sq m of living space and a beautiful southwest exposure. Nestled on the 3rd floor of a contemporary building with an elevator, compliant with the latest RT 2020 energy efficiency standards, it benefits from a prime location in the heart of a vibrant neighborhood, combining comfortable living with easy access. Enjoy immediate proximity to shops, schools, services, and infrastructure, as well as excellent connectivity thanks to metro line B, just 500 meters away, bus lines, and cycle paths. Bathed in light thanks to its optimal exposure, this apartment comprises an entrance hall, a living room with an open-plan kitchen opening onto a pleasant 5.53 sq m balcony, a bedroom, and a shower room with WC. Secure underground parking completes this property. Don't miss this ideal opportunity for investment or a first-time purchase, combining comfort, modernity, and practicality. Developer price - Reduced notary fees. Information regarding the risks to which this property is exposed is available on the Géorisques website: www.georisques.gouv.fr. Photos are for illustrative purposes only and are not contractual.
Condominiums of 24 units. Annual expenses : 633 euros.

Energy expenditure

A B C D E F G high performance housing extremely inefficient housing Not required
A B C D E F G very high CO2 emissions low CO2 emissions Not required

Location of property

Contactez-nous

Contact an advisor by phone or
leave us a message by filling the form

02 99 32 43 86

Financial simulation
Your loan amount Loan amount
Your loan period Loan period
Interest rate before negotiation Interest rates
Loan amount
Loan period
Monthly payments

 Reload Contact us

Biens similaires

A B C D E F G high performance housing extremely inefficient housing Not required
A B C D E F G very high CO2 emissions low CO2 emissions Not required
Affichage :