Skip to main content

Buy Apartment 4 room(s) 81 m2

407 000 €
Nantes
(
44000
)
54459-B402

By registering on Cabinet Moraine website, you will benefit from numerous additional services. Registration is completely free and does not commit you to anything.

Log in
4
Rooms
3
Bedrooms
1
Bathroom
81m²
Surface

Property description

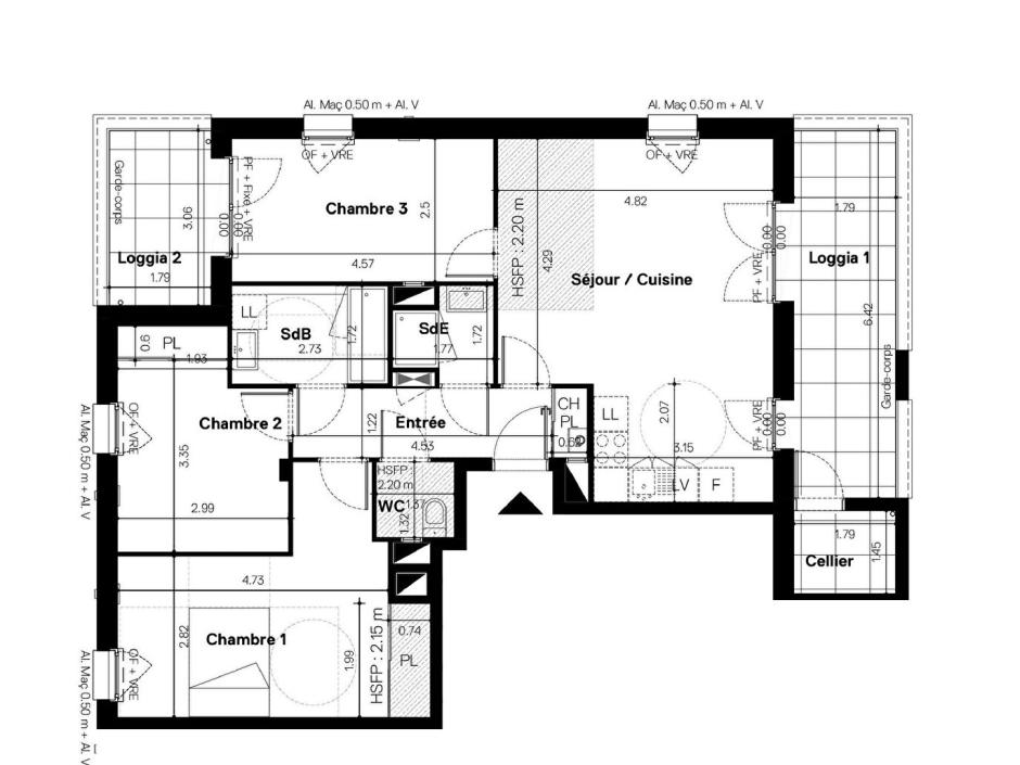
Nantes - Between the Erdre and the Loire - Rond Point de Paris district - 4-room apartment 81.67sqm South East - 4th floor - elevator - 16.92sqm loggias - secure parking. Ideally located between the Loire and the Erdre, in a dynamic and authentic district, this apartment benefits from an exceptional living environment combining greenery, amenities and accessibility. Just a few steps away, enjoy numerous restaurants, services, schools, swimming pool and green spaces, as well as quick access to the city center thanks to the tram, bus, chronobus or even by bike. Nestled on the 4th floor of a residence with neat architecture and elevator, this beautiful address reveals a dual-aspect apartment of 81.67 sqm facing south. Its functional layout includes an entrance with closet, a bright living room with open kitchen, opening onto an 11.46 sqm loggia with pantry. The sleeping area offers three bedrooms, two with closets and one with a private loggia of 5.46 sqm, a shower room, a bathroom and a separate toilet. Secure underground parking completes this property, ideal for combining comfort, modernity and a pleasant lifestyle. Promoter price - reduced notary fees - Information on the risks to which this property is exposed is available on the Géorisques website: www.georisques.gouv.fr. Non-contractual photos - Suggestions for layouts
Condominiums of 39 units (No proceedings in progress). Annual expenses : 1166 euros.

Energy expenditure

A B C D E F G high performance housing extremely inefficient housing Not required
A B C D E F G very high CO2 emissions low CO2 emissions Not required

Location of property

Contactez-nous

Contact an advisor by phone or
leave us a message by filling the form

02 99 32 43 86

Financial simulation
Your loan amount Loan amount
Your loan period Loan period
Interest rate before negotiation Interest rates
Loan amount
Loan period
Monthly payments

 Reload Contact us

Biens similaires

A B C D E F G high performance housing extremely inefficient housing Not required
A B C D E F G very high CO2 emissions low CO2 emissions Not required
Affichage :