Skip to main content

Buy Apartment 4 room(s) 101 m2

674 000 €
Nantes
(
44000
)
55601F2_103

By registering on Cabinet Moraine website, you will benefit from numerous additional services. Registration is completely free and does not commit you to anything.

Log in
4
Rooms
3
Bedrooms
1
Bathroom
101m²
Surface

Property description

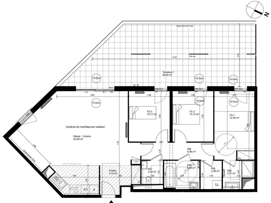
NANTES - Monselet District - 4-room apartment of 101.79 sq m, southwest facing, 1st floor, 49.92 sq m terrace, elevator, secure underground parking. Ideally located in the sought-after residential Monselet district, this apartment puts you within easy reach of the city center. Just an 8-minute bike ride from Place Graslin, with its theaters, shops, bars, and restaurants, and a short walk from public transport, this location offers a perfect balance between urban vibrancy and tranquility. In an elegant, contemporary building, this 101.79 sq m southwest-facing apartment, located on the 1st floor with elevator access, offers generous and bright living spaces. It comprises a large living room with an open-plan kitchen, opening directly onto a spacious 49.92 sq m terrace, perfect for enjoying the outdoors. A hallway leads to three bedrooms, including a master suite with a private shower room and direct access to the terrace, a bathroom, a separate WC, and storage space. This property also includes two secure underground parking spaces, ensuring convenient and secure parking. Advantages: Developer pricing - Reduced notary fees. For more information on any potential risks associated with this property, please visit the Géorisques website: www.georisques.gouv.fr. Photos are not contractual - Layout suggestions
Condominiums of 94 units. Annual expenses : 1483 euros.

Energy expenditure

A B C D E F G high performance housing extremely inefficient housing Not required
A B C D E F G very high CO2 emissions low CO2 emissions Not required

Location of property

Contactez-nous

Contact an advisor by phone or
leave us a message by filling the form

02 99 32 43 86

Financial simulation
Your loan amount Loan amount
Your loan period Loan period
Interest rate before negotiation Interest rates
Loan amount
Loan period
Monthly payments

 Reload Contact us

Biens similaires

A B C D E F G high performance housing extremely inefficient housing Not required
A B C D E F G very high CO2 emissions low CO2 emissions Not required
Affichage :