Skip to main content

Buy Apartment 3 room(s) 72 m2

365 000 €
Dinard
(
35800
)
55683-B101

By registering on Cabinet Moraine website, you will benefit from numerous additional services. Registration is completely free and does not commit you to anything.

Log in
3
Rooms
2
Bedrooms
72m²
Surface

Property description

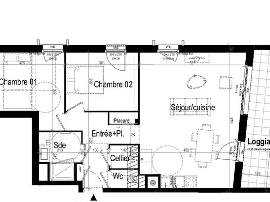
DINARD - 800 meters from the sea - 2-bedroom apartment - 72.88 sq m - 1st floor with elevator - 10.45 sq m loggia - secure underground garage. Notary fees included. In a contemporary residence ideally located just 800 meters from the beach, close to shops, the tennis club and water sports, the GR34 hiking trail and the famous Promenade au Clair de Lune (Moonlight Promenade), this 2-bedroom apartment of 72.88 sq m will charm you with its comfort and practicality. Located on the first floor with elevator access, it offers an entrance hall with a closet, a bright 33.20 sq m living/dining room with an open-plan fitted kitchen, opening onto a 10.45 sq m loggia. The sleeping area includes two bedrooms, a shower room, a separate toilet, and a storage room. Benefiting from a gas heating system, this apartment features secure access via badge and video intercom. A secure underground garage completes this property. Whether for a primary residence, a seaside getaway, or a rental investment, this address combines a prime location with a seaside lifestyle. Developer price - Information on the risks to which this property is exposed is available on the Géorisques website: www.georisques.gouv.fr. Photos are not contractual - Layout suggestions
Condominiums of 44 units. Annual expenses : 1036 euros.

Energy expenditure

A B C D E F G high performance housing extremely inefficient housing Not required
A B C D E F G very high CO2 emissions low CO2 emissions Not required

Location of property

Contactez-nous

Contact an advisor by phone or
leave us a message by filling the form

02 99 32 43 86

Financial simulation
Your loan amount Loan amount
Your loan period Loan period
Interest rate before negotiation Interest rates
Loan amount
Loan period
Monthly payments

 Reload Contact us

Biens similaires

A B C D E F G high performance housing extremely inefficient housing Not required
A B C D E F G very high CO2 emissions low CO2 emissions Not required
Affichage :