Skip to main content

Buy Apartment 3 room(s) 86 m2

399 000 €
Bruz
(
35170
)
6212-16

By registering on Cabinet Moraine website, you will benefit from numerous additional services. Registration is completely free and does not commit you to anything.

Log in
3
Rooms
2
Bedrooms
86m²
Surface

Property description

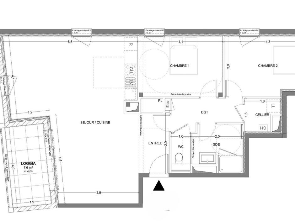
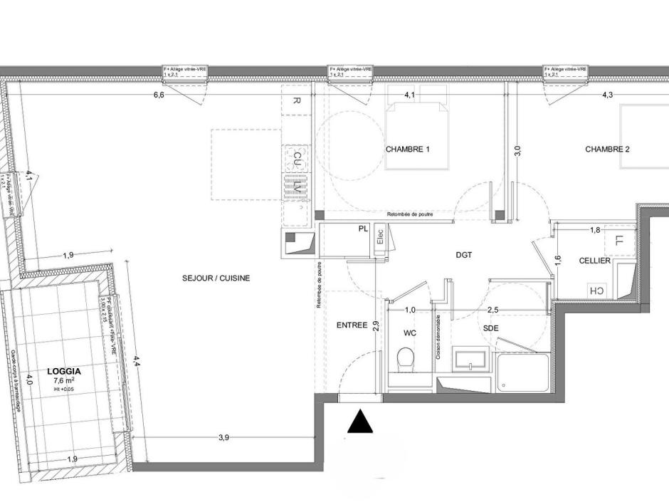
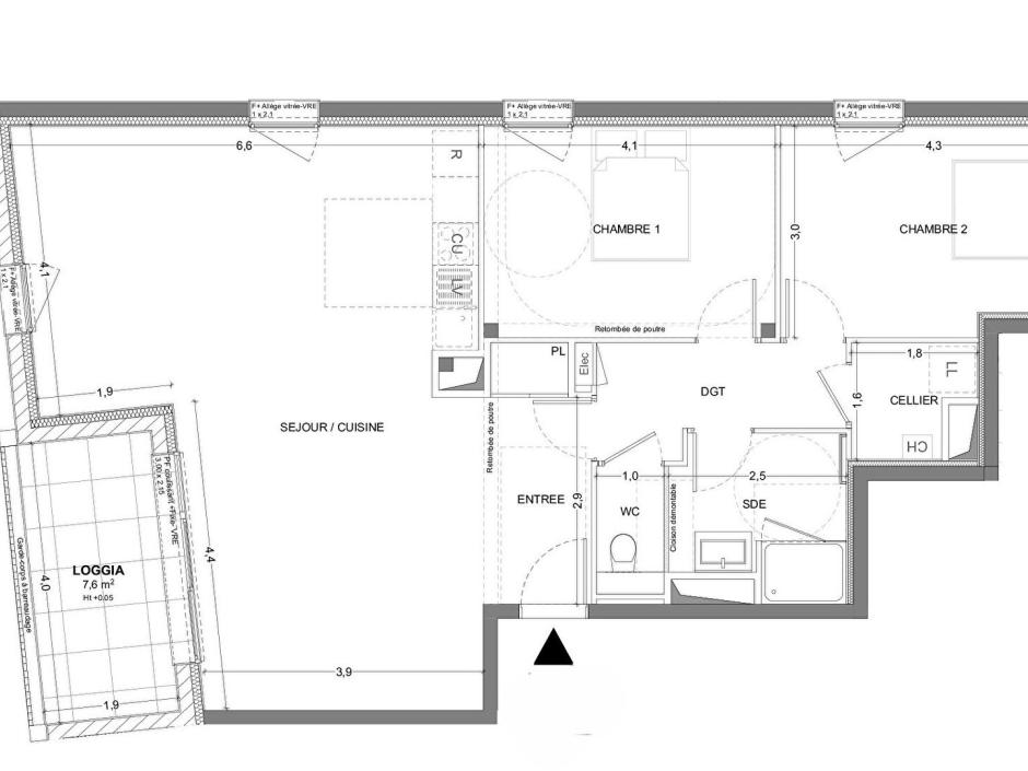
Bruz - 2-Bedroom Apartment, 86.92 sq m, West-Facing, 1st Floor, Elevator, 7.57 sq m Balcony, Secure Underground Garage. Close to Bruz town center, shops, and public transport, this 2-bedroom apartment is located on the 1st floor of a building meeting the latest RT2020 energy efficiency standards. It features an elevator and offers 86.92 sq m of living space. Facing west, it comprises an entrance hall with a built-in wardrobe, a living room with an open-plan kitchen leading onto a 7.57 sq m balcony. The sleeping area includes a hallway, two bedrooms, a shower room, a separate WC, and a storage room. An underground garage completes this property. The location is ideal for transportation: Bruz TER train station provides access to Rennes in just 10 minutes, STAR bus lines facilitate local travel, and the proximity of Rennes Bretagne Airport further enhances the connectivity of this property. Developer price - reduced notary fees. Information on the risks to which this property is exposed is available on the Géorisques website: www.georisques.gouv.fr.
Condominiums of 39 units (No proceedings in progress). Annual expenses : 1238 euros.

Energy expenditure

A B C D E F G high performance housing extremely inefficient housing Not required
A B C D E F G very high CO2 emissions low CO2 emissions Not required

Location of property

Contactez-nous

Contact an advisor by phone or
leave us a message by filling the form

02 99 32 43 86

Financial simulation
Your loan amount Loan amount
Your loan period Loan period
Interest rate before negotiation Interest rates
Loan amount
Loan period
Monthly payments

 Reload Contact us

Biens similaires

A B C D E F G high performance housing extremely inefficient housing Not required
A B C D E F G very high CO2 emissions low CO2 emissions Not required
Affichage :