Skip to main content

Buy Apartment 3 room(s) 70 m2

357 000 €
Vannes
(
56000
)
59814-32

By registering on Cabinet Moraine website, you will benefit from numerous additional services. Registration is completely free and does not commit you to anything.

Log in
3
Rooms
2
Bedrooms
70m²
Surface

Property description

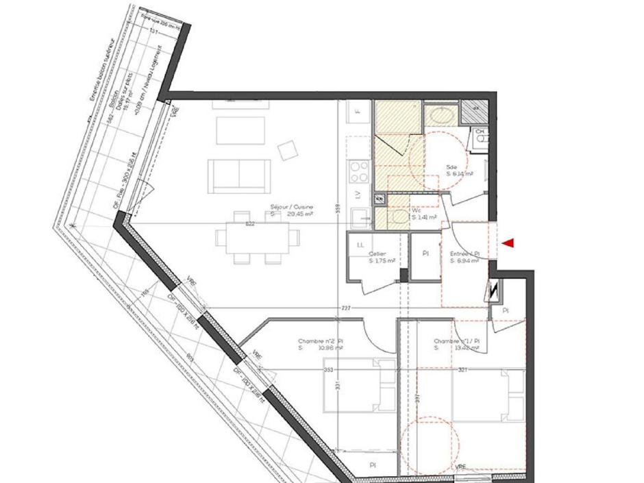
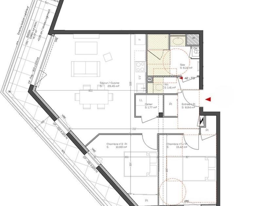
VANNES - 3-room apartment 3rd floor - South- 70.09sqm - elevator - balcony 15.17sqm - garage Located in a privileged environment, close to amenities and transport and a 20-minute walk from the hyper center, this 3-room apartment of 70.09 sqm awaits you on the 3rd floor of a modern residence meeting the latest RT2020 standards. Accessible by elevator, it offers a functional entrance with closet, a bright living space including a living room and an open kitchen opening onto a generous balcony of 15.17 sqm, two comfortable bedrooms, a shower room, a separate toilet, as well as a storeroom. A garage completes this property. Promoter price - reduced notary fees - Information on the risks to which this property is exposed is available on the Géorisques website: www.georisques.gouv.fr. Non-contractual photos - Suggestions for developments
Condominiums of 22 units. Annual expenses : 1092 euros.

Energy expenditure

A B C D E F G high performance housing extremely inefficient housing Not required
A B C D E F G very high CO2 emissions low CO2 emissions Not required

Location of property

Contactez-nous

Contact an advisor by phone or
leave us a message by filling the form

02 99 32 43 86

Financial simulation
Your loan amount Loan amount
Your loan period Loan period
Interest rate before negotiation Interest rates
Loan amount
Loan period
Monthly payments

 Reload Contact us

Biens similaires

A B C D E F G high performance housing extremely inefficient housing Not required
A B C D E F G very high CO2 emissions low CO2 emissions Not required
Affichage :