Skip to main content

Buy Apartment 3 room(s) 64 m2

312 000 €
Betton
(
35830
)
6242-14

By registering on Cabinet Moraine website, you will benefit from numerous additional services. Registration is completely free and does not commit you to anything.

Log in
3
Rooms
2
Bedrooms
64m²
Surface

Property description

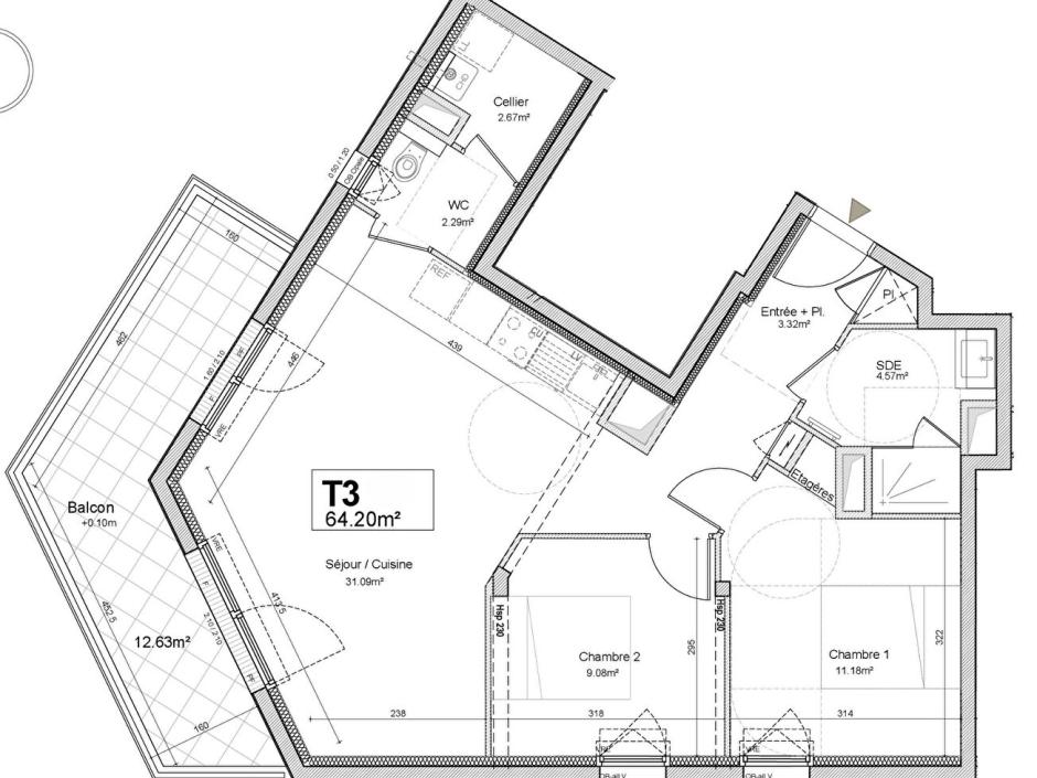
BETTON - 2-bedroom apartment of 64.20 sq m, southwest facing, 1st floor, 12.63 sq m balcony, secure underground parking. Just steps from shops, the train station, the canal banks, and only minutes from the market and schools, in a contemporary residence built to RT2020 standards. This 2-bedroom apartment of 64.20 sq m on the 1st floor with elevator comprises: an entrance hall with built-in wardrobe, a living room with open-plan kitchen opening onto a 12.63 sq m balcony, two bedrooms, a built-in wardrobe, a shower room, a separate WC, and a storage room. Secure underground parking is included. A prime location, quality features, and a balcony: an opportunity not to be missed. Developer price - reduced notary fees. Contact us today to discover available apartments. Information on the risks to which this property is exposed is available on the Géorisques website: www.georisques.gouv.fr.
Condominiums of 30 units. Annual expenses : 921 euros.

Energy expenditure

A B C D E F G high performance housing extremely inefficient housing Not required
A B C D E F G very high CO2 emissions low CO2 emissions Not required

Location of property

Contactez-nous

Contact an advisor by phone or
leave us a message by filling the form

02 99 32 43 86

Financial simulation
Your loan amount Loan amount
Your loan period Loan period
Interest rate before negotiation Interest rates
Loan amount
Loan period
Monthly payments

 Reload Contact us

Biens similaires

A B C D E F G high performance housing extremely inefficient housing Not required
A B C D E F G very high CO2 emissions low CO2 emissions Not required
Affichage :