Skip to main content

Buy Apartment 4 room(s) 90 m2

435 000 €
Rennes
(
35000
)
57500-802

By registering on Cabinet Moraine website, you will benefit from numerous additional services. Registration is completely free and does not commit you to anything.

Log in
4
Rooms
3
Bedrooms
1
Bathroom
90m²
Surface

Property description

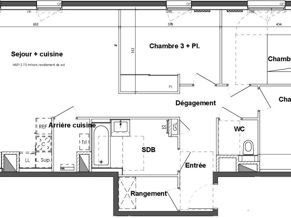
RENNES - BANKS OF THE VILAINE - 4-room apartment 90.09sqm West - 8th floor - elevator - 12.17sqm balcony and 12.33sqm loggia - private parking in secure basement 10 minutes by bike from the Place de la Mairie, 5 minutes by car from the hyper center and the LGV station, in a peaceful city living environment, with a large waterfront park with beach and water activities, not far from the historic center and the quays, shops, restaurants, services and amenities.. cycle paths and public transport.. In a contemporary residence, located on the 8th floor with elevator, 4-room apartment of 90.09 sqm facing West, comprising: an entrance with a storage space, a living room with open fitted kitchen giving access to a 12.17sqm balcony, a utility room, three bedrooms, one with a closet, two others with Access to a 12.33sqm loggia, a bathroom, separate toilet, secure underground parking. Ideal for primary, secondary or rental purchase. Promoter price - Reduced notary fees - Information on the risks to which this property is exposed is available on the Géorisques website: www.georisques.gouv.fr. Non-contractual photos - Suggestions for layouts

Condominiums of 30 units (No proceedings in progress). Annual expenses : 1297 euros.

Energy expenditure

A B C D E F G high performance housing extremely inefficient housing Not required
A B C D E F G very high CO2 emissions low CO2 emissions Not required

Location of property

Contactez-nous

Contact an advisor by phone or
leave us a message by filling the form

02 99 32 43 86

Financial simulation
Your loan amount Loan amount
Your loan period Loan period
Interest rate before negotiation Interest rates
Loan amount
Loan period
Monthly payments

 Reload Contact us

Biens similaires

A B C D E F G high performance housing extremely inefficient housing Not required
A B C D E F G very high CO2 emissions low CO2 emissions Not required
Affichage :